運命のリノベーション
物件と出会える場所
物件と出会える場所
[過去取扱物件]
免震構造・地上44階建てタワーレジデンス
- 所在地 : 大阪府大阪市北区
- 交通 : Osaka Metro谷町線『中崎町』駅徒歩5分
Osaka Metro谷町線・堺筋線『天神橋筋六丁目』駅徒歩6分
阪急千里線『天神橋筋六丁目』駅徒歩6分
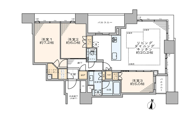
阪急神戸線・宝塚線・京都線『大阪梅田』駅徒歩14分 - 間取り : 3LDK+WIC・SIC
- 専有面積 : 83.77 ㎡
- 24時間有人管理
- 2駅利用可能
- CATV導入済み
- TVモニター付インターフォン
- オートロック
- トイレ新規交換
- トランクルーム
- ペット飼育可
- 両面バルコニー
- 光ファイバー導入済
(共用部まで) - 外観タイル貼
- 宅配ボックス
- 床暖房
- 浄水器
- 浴室換気乾燥機
- 眺望良好
- 角部屋
- 食器洗い機
- 駐車場
- 駐輪場
物件概要
リノベーション内容
- 構造鉄筋コンクリート造地上44階建41階部分
- 間取り3LDK+WIC・SIC
- 専有面積83.77㎡(壁芯)
- バルコニー面積8.71 ㎡
- 土地権利所有権
- 用途地域商業地域・準工業地域
- 駐車場空有(24,000~45,000円/月)
- ペット飼育可(ペット飼育細則あり)
- 事務所使用不可
- フローリング新規貼替
- 壁・天井クロス新規貼替
- TOTO製洗面化粧台新規交換
- TOTO製洗浄便座付タンクレストイレ新規交換
- TOTO製追焚機能(循環式)付ユニットバス新規交換(浴室換気乾燥機付)
- TOTO製システムキッチン新規交換(食器洗い機付)
- 照明器具新規設置※1
- 給湯器新規交換
- エアコン一基新規設置
- ディスポーザー新規設置…等
- ※1シーリングライトは、販売には含まれません








































