ローレルタワーサンクタス梅田 3805号室|大阪府大阪市
物件の価値を磨き上げた
リノベーション住宅
リノベーション住宅
ローレルタワーサンクタス梅田 3805号室
価格23,990万円
月額ローンのシミュレーション
- 44階建て免震構造タワーレジデンス
- 『福島』駅徒歩8分 / 『大阪』駅徒歩12 分
- 38階・南東角住戸 陽当り・眺望良好
- 所在地 : 大阪府大阪市北区大淀南2-2-43
- 交通 : JR大阪環状線『福島』駅徒歩8分
JR東海道本線・JR大阪環状線『大阪』駅徒歩12分
阪神本線『福島』駅徒歩10分
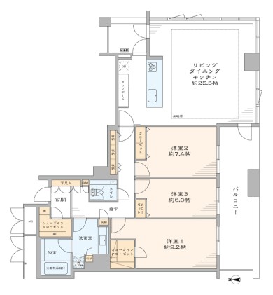
JR東西線『新福島』駅徒歩10分 - 間取り : 3LDK+WIC+SIC
- 専有面積 : 110.44 ㎡
当物件を
スマホで
チェック!!
- 24時間有人管理
- 2駅利用可能
- CATV導入済み
- TVモニター付インターフォン
- オートバス
- オートロック
- トイレ新規交換
- ペット飼育可
- 光ファイバー導入済
(共用部まで) - 公園至近
- 外観タイル貼
- 宅配ボックス
- 床暖房
- 浄水器
- 浴室換気乾燥機
- 眺望良好
- 角部屋
- 食器洗い機
- 駐車場
- 駐輪場
物件概要
リノベーション内容
- 構造鉄筋コンクリート造地上44階建38階部分
- 間取り3LDK+WIC+SIC
- 専有面積110.44㎡(壁芯)
- バルコニー面積18.27 ㎡
- 築年月2007(平成19)年1月
- 総戸数257戸
- 土地権利所有権
- 用途地域商業地域
- 現況空室
- 引渡日即可
- 駐車場空有(19,500円~28,000円/月)
- ペット飼育可(犬・猫合わせて2匹まで、ペット飼育規程有)
- 事務所使用不可
- 管理費28,710円/月
- 修繕積立金6,070円/月
- 管理形態全部委託管理(日勤)
- 管理会社㈱大京アステージ
- 施工会社㈱竹中工務店
- 旧分譲会社近鉄不動産㈱、オリックス・リアルエステート㈱
- 設備都市ガス・公営水道・本下水・EV・オートロック・宅配ボックス
- 備考駐輪場:空有(100円~200円/月)
バイク置場:空有(1,000円~1,500円/月)
インターネット(NTTメディアサプライ、オプテージ、NURO光)
CATV(スカパーJSAT)
修繕積立金総額:589,999,645円(R7年5月現在)
固定資産税・都市計画税:262,943円(R7年度概算)
アルコーブ面積 : 1.76m²
そ の 他 : 1,000円/月(アルソック警備料)
※マンション以外に居住する区分所有者が理事会議事録の送付を
希望する場合は組合賛助金100円/月が必要です。 - 修繕履歴令和 6年12月 共用部LED化工事
令和 3年 1月 Raccessキーシステム導入工事
- フローリング新規貼替
- 壁・天井クロス新規貼替
- 建具・玄関収納等新規交換
- TOTO製洗面化粧台新規交換
- TOTO製洗浄便座付タンクレストイレ新規交換
- TOTO製追焚機能(循環式)付ユニットバス新規交換(浴室換気乾燥機付)
- 田中工藝製システムキッチン新規交換(食器洗い機付)
- 照明器具新規設置※1
- エアコン一基新規設置
- ディスポーザー新規交換
- 床暖房マット新規交換…等
- ※1シーリングライトは、販売には含まれません
Google Maps Loading...
- 所在地 : 大阪府大阪市北区大淀南2-2-43
- 交通 : JR大阪環状線『福島』駅徒歩8分
JR東海道本線・JR大阪環状線『大阪』駅徒歩12分
阪神本線『福島』駅徒歩10分
JR東西線『新福島』駅徒歩10分








































