ローレル・トアスクエア 1304号室|兵庫県神戸市
物件の価値を磨き上げた
リノベーション住宅
リノベーション住宅
ローレル・トアスクエア 1304号室
価格8,990万円
月額ローンのシミュレーション 価格改定
- 旧居留地と北野を結ぶトアロード沿い
- 14階建13階部分/ 南東角住戸
- 専有面積91m²超 収納豊富な3LDK
- 所在地 : 兵庫県神戸市中央区中山手通2-4-15
- 交通 : JR東海道本線『三ノ宮』駅徒歩10分
JR東海道本線『元町』駅徒歩8分
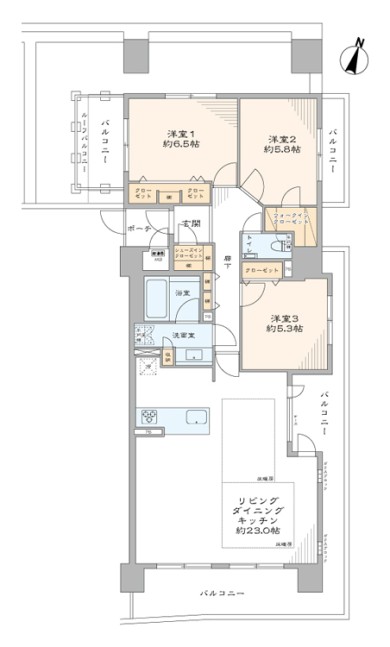
阪急神戸線『神戸三宮』駅徒歩7分 - 間取り : 3LDK+WIC・SIC
- 専有面積 : 91.31 ㎡
当物件を
スマホで
チェック!!
- CATV導入済み
- TVモニター付インターフォン
- オートロック
- トイレ新規交換
- ルーフバルコニー
- 事務所使用可
- 光ファイバー導入済
(共用部まで) - 外観タイル貼
- 宅配ボックス
- 床暖房
- 浄水器
- 浴室換気乾燥機
- 眺望良好
- 角部屋
- 買物便利
- 食器洗い機
- 駐輪場
物件概要
リノベーション内容
- 構造鉄骨鉄筋コンクリート造地下1階地上14階建13階部分
- 間取り3LDK+WIC・SIC
- 専有面積91.31㎡(壁芯)
- バルコニー面積30.00 ㎡
- 築年月2001(平成13)年2月
- 総戸数73戸
- 土地権利所有権
- 用途地域商業地域
- 現況空室
- 引渡日即可
- 駐車場無(分譲のみ)
- ペット飼育不可
- 事務所使用可(使用細則参照)
- 管理費15,070円/月
- 修繕積立金27,390円/月
- 管理形態全部委託管理(日勤)
- 管理会社三井不動産レジデンシャルサービス関西㈱
- 施工会社㈱熊谷組
- 旧分譲会社㈱ローレル
- 設備都市ガス・公営水道・本下水・EV・オートロック・宅配ボックス
- 備考駐輪場:各住戸1台割り当てあり、無償
バイク置場:無
インターネット(NTTフレッツ光ネクスト、au光) ・ CATV(J:COM)
修繕積立金総額:104,119,707円(R7年4月現在)
固定資産税・都市計画税:177,308円(R7年度概算) - 修繕履歴令和6年5月 インターホン設備更新工事
令和6年2月 消防用ホース更新工事
令和4年8月 照明設備LED化工事
- フローリング新規貼替
- 壁・天井クロス新規貼替
- 建具・玄関収納等新規交換
- エアコン一基新規設置
- LIXIL製洗面化粧台新規交換
- TOTO製洗浄便座付タンクレストイレ新規交換
- TOTO製追焚機能(循環式)付ユニットバス新規交換(浴室換気乾燥機付)
- 田中工藝製システムキッチン新規交換(食器洗い機付)
- 照明器具新規設置 ※1
- 給湯器新規交換 ※2
- 床暖房マット新規設置…等
- ※1 シーリングは、販売には含まれません
- ※2 給湯器の新規交換は設備の納品後になります
Google Maps Loading...
- 所在地 : 兵庫県神戸市中央区中山手通2-4-15
- 交通 : JR東海道本線『三ノ宮』駅徒歩10分
JR東海道本線『元町』駅徒歩8分
阪急神戸線『神戸三宮』駅徒歩7分





































