運命のリノベーション
物件と出会える場所
物件と出会える場所
[過去取扱物件]
都心の水辺に映えるランドマークレジデンス
- 所在地 : 東京都中央区
- 交通 : 都営大江戸線『勝どき』駅徒歩11分
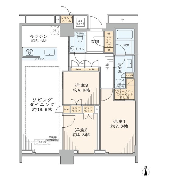
東京メトロ有楽町線・都営大江戸線『月島』駅徒歩14分 - 間取り : 3LDK+WIC・SIC
- 専有面積 : 79.54 ㎡
- 24時間有人管理
- 2駅利用可能
- CATV導入済み
- IHクッキングヒーター
- オートロック
- トイレ新規交換
- バス停至近
- ペット飼育可
- 光ファイバー導入済
(共用部まで) - 公園至近
- 宅配ボックス
- 浴室換気乾燥機
- 眺望良好
- 食器洗い機
- 駐車場
- 駐輪場
物件概要
リノベーション内容
- 構造鉄筋コンクリート造地下2階地上49階建45階部分
- 間取り3LDK+WIC・SIC
- 専有面積79.54㎡(壁芯)
- バルコニー面積13.80 ㎡
- 土地権利所有権
- 用途地域準工業地域
- 駐車場空無(27,000円~36,000円/月)
- ペット飼育可(規約有)
- 事務所使用不可
- IHコンロ新規交換
- 食器洗い機新規設置
- 洗濯パン新規交換
- TOTO製洗浄便座付トイレ新規交換
- エコキュート新規交換
- 壁・天井クロス新規貼替
- 照明器具新規設置
- エアコン一基新規設置
- 浴室換気乾燥機新規交換…等











































