エフローレ日本橋 1203号室|東京都中央区
物件の価値を磨き上げた
リノベーション住宅
リノベーション住宅
エフローレ日本橋 1203号室
価格21,990万円
月額ローンのシミュレーション
- 再開発が進む日本橋エリア
- 『日本橋』『人形町』『三越前』が徒歩圏
- 12階東南向きにつき陽当たり・通風良好
- 所在地 : 東京都中央区日本橋大伝馬町13-5
- 交通 : 東京メトロ日比谷線『小伝馬町』駅徒歩3分
都営新宿線『馬喰横山』駅徒歩4分
東京メトロ銀座線『三越前』駅徒歩10分
都営浅草線『東日本橋』駅徒歩5分
JR山手線『神田』駅徒歩15分
東京メトロ日比谷線・都営浅草線『人形町』駅徒歩8分
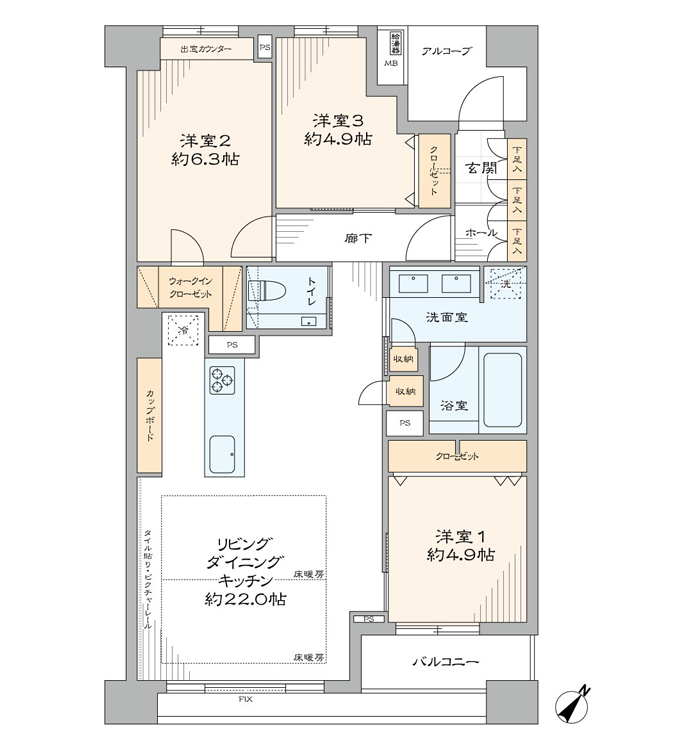
JR総武本線『馬喰町』駅徒歩4分 - 間取り : 3LDK+WIC
- 専有面積 : 83.73 ㎡
当物件を
スマホで
チェック!!
- 2駅利用可能
- CATV導入済み
- オートロック
- トイレ新規交換
- トランクルーム
- ペット飼育可
- 光ファイバー導入済
(共用部まで) - 宅配ボックス
- 床暖房
- 浴室換気乾燥機
- 食器洗い機
- 駅近
- 駐輪場
自宅からバーチャル内覧会を開催中です。
オンラインで物件をご案内します。
オンラインで物件をご案内します。
お電話での問い合わせ(10:00-19:00)
物件概要
リノベーション内容
- 構造鉄骨鉄筋コンクリート造地下1階地上13階建12階部分
- 間取り3LDK+WIC
- 専有面積83.73㎡(壁芯)
- バルコニー面積5.28 ㎡
- 築年月2002(平成14)年9月
- 総戸数155戸
- 土地権利所有権
- 用途地域商業地域
- 現況空室
- 引渡日即可
- 駐車場空無(30,000円~45,000円/月)
- ペット飼育可(規約有)
- 事務所使用不可
- 管理費15,840円/月
- 修繕積立金8,720円/月
- 管理形態全部委託管理(日勤)
- 管理会社㈱長谷工コミュニティ
- 施工会社佐藤工業㈱
- 旧分譲会社文化エステート㈱
- 設備都市ガス・公営水道・本下水・EV・オートロック・宅配ボックス
- 備考駐輪場:空有(無償・2台目以降500円/月)
バイク置場:無 ・ インターネット(つなぐネット・NTT東日本)
CATV(東京ケーブルネットワーク)
トランクルーム専用使用権(地下1階・No81・無償)
修繕積立金総額:237,507,967円(2024年9月現在)
固定資産税・都市計画税:186,233円(2025年度概算) - 修繕履歴2024年12月 鉄部塗装工事・排水設備工事
2022年 7月 宅配ボックス更新工事
- フローリング新規貼替
- 壁・天井クロス新規貼替
- 建具・玄関収納等新規交換
- TOTO製洗浄便座付トイレ新規交換
- 田中工藝製オリジナル洗面化粧台新規交換
- LIXIL製ユニットバス新規交換(浴室換気乾燥機付)
- 田中工藝製オリジナルシステムキッチン新規交換(食器洗い機付)
- 給湯器新規交換(追焚式)
- 照明器具新規設置
- エアコン2基新規設置
- 床暖房マット新規設置(LD)…等
Google Maps Loading...
- 所在地 : 東京都中央区日本橋大伝馬町13-5
- 交通 : 東京メトロ日比谷線『小伝馬町』駅徒歩3分
都営新宿線『馬喰横山』駅徒歩4分
東京メトロ銀座線『三越前』駅徒歩10分
都営浅草線『東日本橋』駅徒歩5分
JR山手線『神田』駅徒歩15分
東京メトロ日比谷線・都営浅草線『人形町』駅徒歩8分
JR総武本線『馬喰町』駅徒歩4分
自宅からバーチャル内覧会を開催中です。
オンラインで物件をご案内します。
オンラインで物件をご案内します。
お電話での問い合わせ(10:00-19:00)





































