運命のリノベーション
物件と出会える場所
物件と出会える場所
[過去取扱物件]
三井不動産(株)旧分譲マンション
- 所在地 : 兵庫県神戸市東灘区
- 交通 : 阪急神戸線『御影』駅徒歩4分
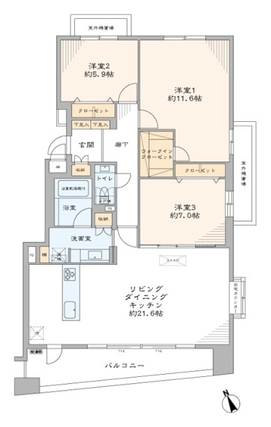
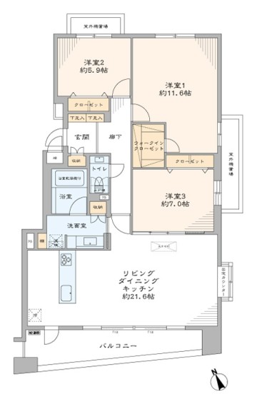
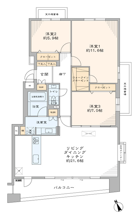
- 間取り : 3LDK+WIC
- 専有面積 : 102.92 ㎡
- CATV導入済み
- TVモニター付インターフォン
- オートロック
- トイレ新規交換
- 光ファイバー導入済
(共用部まで) - 外観タイル貼
- 宅配ボックス
- 浄水器
- 浴室換気乾燥機
- 眺望良好
- 緑多い住環境
- 角部屋
- 食器洗い機
- 駐輪場
物件概要
リノベーション内容
- 構造鉄筋コンクリート造地上7階建4階部分
- 間取り3LDK+WIC
- 専有面積102.92㎡(壁芯)
- バルコニー面積13.04 ㎡
- 土地権利所有権
- 用途地域第一種中高層住居専用地域
- 駐車場空無(19,000円~25,000円/月)
- ペット飼育不可
- 事務所使用不可
- フローリング新規貼替
- 壁・天井クロス新規貼替
- 建具・玄関収納等新規交換
- LIXIL製洗面化粧台新規交換
- TOTO製洗浄便座付トイレ新規交換
- TOTO製追焚機能(循環式)付ユニットバス新規交換(浴室換気乾燥機付)
- 田中工藝製システムキッチン新規交換(人造大理石トップ)
- 天井カセットエアコン一基新規設置
- 給湯器新規交換 ※2
- 照明器具新規設置 ※1…等
- ※1 シーリングは、販売には含まれません
- ※2 給湯器の新規交換は設備の納品後になります




































