運命のリノベーション
物件と出会える場所
物件と出会える場所
[過去取扱物件]
南千里駅徒歩1分・駅直結デッキで快適アクセス
- 所在地 : 大阪府吹田市
- 交通 : 阪急千里線『南千里』駅徒歩1分
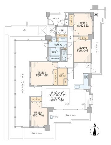
- 間取り : 4LDK+S(納戸)
- 専有面積 : 110.70 ㎡
- CATV導入済み
- IHクッキングヒーター
- TVモニター付インターフォン
- オートロック
- トイレ新規交換
- ペット飼育可
- ルーフバルコニー
- 両面バルコニー
- 光ファイバー導入済
(共用部まで) - 公園至近
- 外観タイル貼
- 宅配ボックス
- 床暖房
- 最上階
- 浄水器
- 浴室換気乾燥機
- 眺望良好
- 角部屋
- 買物便利
- 食器洗い機
- 駅近
- 駐車場
- 駐輪場
物件概要
リノベーション内容
- 構造鉄筋コンクリート造地下1階地上7階建7階部分
- 間取り4LDK+S(納戸)
- 専有面積110.70㎡(壁芯)
- バルコニー面積34.26 ㎡
- 土地権利所有権
- 用途地域第一種中高層住居専用地域
- 駐車場空有(14,000円~17,000円/月)
- ペット飼育可(ペット飼育細則有)
- 事務所使用不可
- フローリング新規貼替
- 建具・玄関収納等新規交換
- LIXIL製洗面化粧台新規交換
- TOTO製洗浄便座付トイレ新規交換
- TOTO製追焚機能(循環式)付ユニットバス新規交換(浴室換気乾燥機付)
- 壁・天井クロス新規貼替
- 床暖房マット新規交換
- 照明器具新規設置※1
- エアコン一基新規設置
- LIXIL製システムキッチン新規交換(食器洗浄乾燥機付)…等
- ※1シーリングライトは、販売には含まれません






































