上本町ヒルズマーク 3203号室|大阪府大阪市
物件の価値を磨き上げた
リノベーション住宅
リノベーション住宅
上本町ヒルズマーク 3203号室
価格14,990万円
月額ローンのシミュレーション
- 3駅5路線利用可『大阪上本町』駅徒歩6分
- 32階部分南西角住戸 陽当り・通風・眺望良好
- 大阪湾方面を望む眺望
- 所在地 : 大阪府大阪市天王寺区筆ケ崎町5-39
- 交通 : 近鉄奈良・大阪線『大阪上本町』駅徒歩6分
Osaka Metro谷町線・千日前線『谷町九丁目』駅徒歩9分
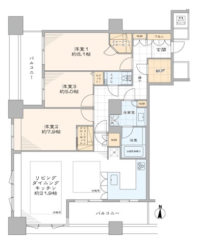
JR大阪環状線『鶴橋』駅徒歩9分 - 間取り : 3LDK+S(納戸)+2WIC
- 専有面積 : 101.12 ㎡
当物件を
スマホで
チェック!!
- 2駅利用可能
- CATV導入済み
- IHクッキングヒーター
- TVモニター付インターフォン
- オートロック
- トイレ新規交換
- ペット飼育可
- 光ファイバー導入済
(共用部まで) - 外観タイル貼
- 宅配ボックス
- 床暖房
- 浄水器
- 浴室換気乾燥機
- 眺望良好
- 角部屋
- 食器洗い機
- 駐車場
- 駐輪場
物件概要
リノベーション内容
- 構造鉄筋コンクリート造地下1階地上37階建32階部分
- 間取り3LDK+S(納戸)+2WIC
- 専有面積101.12㎡(壁芯)
- バルコニー面積16.44 ㎡
- 築年月2007(平成19)年6月
- 総戸数270戸
- 土地権利所有権
- 用途地域第二種住居地域
- 現況空室
- 引渡日即可
- 駐車場空有(22,000~35,000円/月)
- ペット飼育可(飼育細則有、小型の犬・猫等2匹まで)
- 事務所使用不可
- 管理費16,180円/月
- 修繕積立金22,250円/月
- 管理形態全部委託管理(日勤)
- 管理会社三菱地所コミュニティ㈱
- 施工会社㈱大林組
- 旧分譲会社関電不動産㈱、野村不動産㈱
- 設備オール電化・公営水道・本下水・EV・オートロック・宅配ボックス
- 備考駐輪場:空有(200円/月)
バイク置場:空有(1,500~3,000円/月)
インターネット(オプテージ) ・ CATV(オプテージ)
修繕積立金総額:504,229,219円(R6年8月現在)
固定資産税・都市計画税:230,495円(R7年度概算)
その他費用内訳:
(防犯設備費:1,223円、インターネット利用料:1,991円) - 修繕履歴令和7年10月 大規模修繕工事
- フローリング新規貼替
- 建具・玄関収納等新規交換
- ディスポーザー新規交換
- 床暖房マット新規交換
- LIXIL製洗面化粧台新規交換
- TOTO製洗浄便座付トイレタンクレス新規交換
- TOTO製追焚機能(循環式)付ユニットバス新規交換(浴室換気乾燥機付)
- 田中工藝製システムキッチン新規交換(食器洗い機付)
- 壁・天井クロス新規貼替
- 電気温水器新規交換
- 照明器具新規設置 ※1
- エアコン三基新規設置…等
- ※1 シーリングライトは、販売には含まれません
Google Maps Loading...
- 所在地 : 大阪府大阪市天王寺区筆ケ崎町5-39
- 交通 : 近鉄奈良・大阪線『大阪上本町』駅徒歩6分
Osaka Metro谷町線・千日前線『谷町九丁目』駅徒歩9分
JR大阪環状線『鶴橋』駅徒歩9分




































