運命のリノベーション
物件と出会える場所
物件と出会える場所
[過去取扱物件]
総戸数127戸の大規模マンション
- 所在地 : 東京都豊島区
- 交通 : 東武東上線『北池袋』駅徒歩9分
都営三田線『西巣鴨』駅徒歩10分
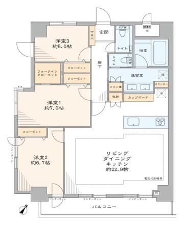
JR埼京線『板橋』駅徒歩11分 - 間取り : 3LDK+WIC
- 専有面積 : 95.50 ㎡
- 2駅利用可能
- CATV導入済み
- オートロック
- トイレ新規交換
- 光ファイバー導入済
(共用部まで) - 宅配ボックス
- 床暖房
- 浴室換気乾燥機
- 角部屋
- 買物便利
- 食器洗い機
- 駐輪場
物件概要
リノベーション内容
- 構造鉄骨鉄筋コンクリート造地下2階地上14階建8階部分
- 間取り3LDK+WIC
- 専有面積95.50㎡(壁芯)
- バルコニー面積10.00 ㎡
- 土地権利所有権
- 用途地域商業地域・第一種住居地域
- 駐車場空無(30,000円/月)
- ペット飼育不可
- 事務所使用不可
- フローリング新規貼替
- 壁・天井クロス新規貼替
- 給水管・給湯管新規交換(専有部)
- 建具・玄関収納等新規交換
- LIXIL製洗面化粧台新規交換
- LIXIL製洗浄便座付トイレ新規交換
- TOTO製ユニットバス新規交換(浴室換気乾燥機付)
- LIXIL製システムキッチン新規交換(食器洗い機付)
- 照明器具新規設置
- エアコン1基新規設置
- 床暖房マット新規設置(LD)
- 給湯器新規交換(追焚式)…等











































