ステーションフロントタワー 2102号室|東京都豊島区
物件の価値を磨き上げた
リノベーション住宅
リノベーション住宅
ステーションフロントタワー 2102号室
価格11,980万円
月額ローンのシミュレーション
自宅からバーチャル内覧会を開催中です。
オンラインで物件をご案内します。
オンラインで物件をご案内します。
お電話での問い合わせ(10:00-19:00)
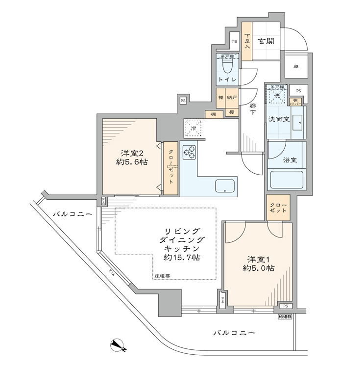
物件概要
リノベーション内容
- 構造鉄筋コンクリート造地下1階地上30階建21階部分
- 間取り2LDK
- 専有面積60.37㎡(壁芯)
- バルコニー面積13.19 ㎡
- 築年月2000(平成12)年8月
- 総戸数224戸
- 土地権利所有権
- 用途地域商業地域
- 現況空室
- 引渡日即可
- 駐車場空有(34,000円~70,000円/月)
- ペット飼育可(常識の範囲内で、周辺の方に気を遣うことが条件で犬猫可能)
- 事務所使用不可
- 管理費13,500円/月
- 修繕積立金13,580円/月
- 管理形態全部委託管理(日勤)
- 管理会社大和ライフネクスト㈱
- 施工会社三井建設㈱
- 旧分譲会社三井不動産㈱
- 設備都市ガス・公営水道・本下水・エレベーター
- 備考バイク置場:空有(3,000円/月)
駐輪場:空有(300円~500円/月)
インターネット(UCOM(無料)・NTT(個別契約))
CATV(豊島CATV)
修繕積立金総額:426,204,765円(2024年9月現在)
固定資産税・都市計画税:124,600円(2023年度概算) - 修繕履歴2024年 機械式駐車場一部平面化工事
2023年 共用照明LED化工事
2021年 屋上防水、鉄部塗装
- フローリング新規貼替
- 壁・天井クロス新規貼替
- 給湯管新規交換(専有部)
- 建具・玄関収納等新規交換
- TOTO製洗面化粧台新規交換
- TOTO製洗浄便座付トイレ新規交換
- TOTO製ユニットバス新規交換(浴室換気乾燥機付)
- トクラス製システムキッチン新規交換(食器洗い機付)
- 照明器具新規設置
- エアコン一基新規設置
- 床暖房マット新規設置(LD)
- 給湯器新規交換(追焚式)…等
Google Maps Loading...
- 所在地 : 東京都豊島区北大塚2-24-5
- 交通 : JR山手線『大塚』駅徒歩4分
東京メトロ丸ノ内線『新大塚』駅徒歩12分
都電荒川線『巣鴨新田』駅徒歩2分
自宅からバーチャル内覧会を開催中です。
オンラインで物件をご案内します。
オンラインで物件をご案内します。
お電話での問い合わせ(10:00-19:00)















