運命のリノベーション
物件と出会える場所
物件と出会える場所
[過去取扱物件]
20階部分・西向き 眺望良好
- 所在地 : 東京都江東区
- 交通 : 東京メトロ有楽町線『豊洲』駅徒歩5分
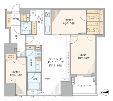
ゆりかもめ『豊洲』駅徒歩6分 - 間取り : 3LDK+2WIC・SIC
- 専有面積 : 80.12 ㎡
- 2駅利用可能
- CATV導入済み
- TVモニター付インターフォン
- オートロック
- トイレ新規交換
- ペット飼育可
- 光ファイバー導入済
(共用部まで) - 公園至近
- 宅配ボックス
- 床暖房
- 浴室換気乾燥機
- 眺望良好
- 食器洗い機
- 駐車場
- 駐輪場
物件概要
リノベーション内容
- 構造鉄筋コンクリート造地下1階地上48階建20階部分
- 間取り3LDK+2WIC・SIC
- 専有面積80.12㎡(壁芯)
- バルコニー面積4.83 ㎡
- 土地権利所有権
- 用途地域工業地域
- 駐車場空有(25,000円~60,000円/月)
- ペット飼育可(犬猫2匹まで・体長40㎝体重10㎏以内・使用細則有)
- 事務所使用不可
- フローリング新規貼替
- 田中工藝製洗面化粧台新規交換
- LIXIL製洗浄便座付トイレ新規交換
- LIXIL製ユニットバス新規交換(浴室換気乾燥機付)
- 田中工藝製システムキッチン新規交換(食器洗い機付)
- 壁・天井クロス新規貼替
- 照明器具新規設置
- エアコン2台マルチ新規設置
- 床暖房マット新規設置(LD)…等










































