ライオンズシティ武蔵小杉 601号室|神奈川県川崎市
物件の価値を磨き上げた
リノベーション住宅
リノベーション住宅
ライオンズシティ武蔵小杉 601号室
オープンルーム
価格9,890万円
月額ローンのシミュレーション
オープンルーム
開催中
開催中
【開催日時】4/25(土)、4/26(日)10:00~18:00 ※予約可能枠として11:00~、13:00~、15:00~、17:00~がございます。
ご希望の方は、ビデオ通話での内見が可能です。
自宅からバーチャル内覧会を開催中です。
オンラインで物件をご案内します。
オンラインで物件をご案内します。
お電話での問い合わせ(10:00-19:00)
物件概要
リノベーション内容
- 構造鉄筋コンクリート造地上7階建6階部分
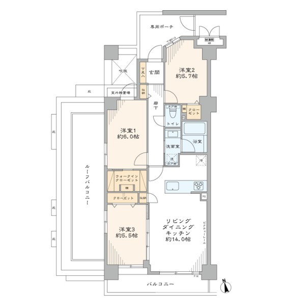
- 間取り3LDK+WIC
- 専有面積70.86㎡(壁芯)
- バルコニー面積7.64 ㎡
- 築年月1998(平成10)2年2月
- 総戸数45戸
- 土地権利所有権
- 用途地域近隣商業地域
- 現況空室
- 引渡日即可
- 駐車場空無(15,000円~20,000円/月)
- ペット飼育不可
- 事務所使用不可
- 管理費12,900円/月
- 修繕積立金15,940円/月
- 管理形態全部委託管理(日勤)
- 管理会社㈱大京アステージ
- 施工会社東レ建設㈱・㈱ナカノコーポレーション
- 旧分譲会社㈱大京
- 設備都市ガス・公営水道・本下水・EV・オートロック・宅配ボックス
- 備考ルーフバルコニー : 15.12m²
ポーチ面積 : 6.72m²
駐輪場:空有(600円~2,400円/年)
バイク置場:空無(2,000円/月)
インターネット(NTT・U-NEXT)
CATV(イッツコム)
修繕積立金総額:98,214,828円(2025年12月現在)
固定資産税・都市計画税:135,341円(2025年度概算)
そ の 他 : 230円/月(ルーフバルコニー使用料)
※2026年7月分から修繕積立金が19,490円/月へ改定。 - 修繕履歴2016年 インターホン改修工事・鉄部塗装工事
2026年1月 大規模修繕工事
2026年6月 メールボックス一斉交換工事予定
- フローリング新規貼替
- 壁・天井クロス新規貼替
- 給水管・給湯管新規交換(専有部)
- 建具・玄関収納等新規交換
- LIXIL製洗面化粧台新規交換
- TOTO製洗浄便座付トイレ新規交換
- TOTO製ユニットバス新規交換(浴室換気乾燥機付)
- LIXIL製システムキッチン新規交換(食器洗い機付)
- 給湯器新規交換(追焚式)
- 照明器具新規設置
- エアコン1基新規設置…等
Google Maps Loading...
- 所在地 : 神奈川県川崎市中原区今井南町27-15
- 交通 : 東急東横線・JR南武線『武蔵小杉』駅徒歩7分
JR横須賀線『武蔵小杉』駅徒歩13分
自宅からバーチャル内覧会を開催中です。
オンラインで物件をご案内します。
オンラインで物件をご案内します。
お電話での問い合わせ(10:00-19:00)











































