運命のリノベーション
物件と出会える場所
物件と出会える場所
[過去取扱物件]
都心の洗練を纏う、南青山7丁目レジデンス
- 所在地 : 東京都港区
- 交通 : 東京メトロ日比谷線『広尾』駅徒歩11分
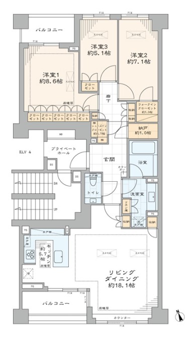
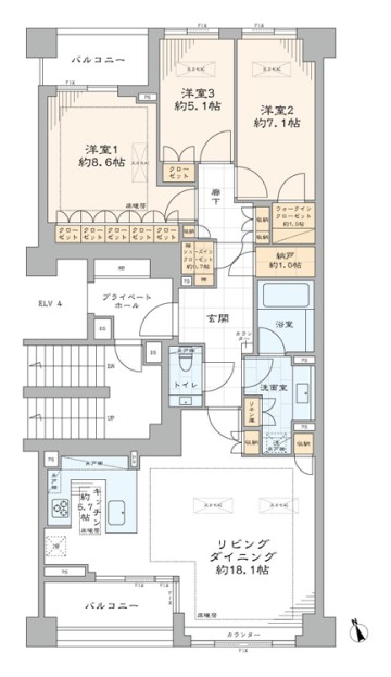
- 間取り : 3LDK+WIC・SIC・納戸
- 専有面積 : 105.97 ㎡
- CATV導入済み
- オートロック
- トイレ新規交換
- トランクルーム
- ペット飼育可
- 光ファイバー導入済
(共用部まで) - 公園至近
- 宅配ボックス
- 床暖房
- 浴室換気乾燥機
- 買物便利
- 食器洗い機
- 駐車場
- 駐輪場
物件概要
リノベーション内容
- 構造鉄筋コンクリート造地下1階地上7階建2階部分
- 間取り3LDK+WIC・SIC・納戸
- 専有面積105.97㎡(壁芯)
- バルコニー面積12.06 ㎡
- 土地権利所有権
- 用途地域近隣商業地域・第一種中高層住居専用地域
- 駐車場空有(38,000円~53,000円/月)※1
- ペット飼育可(体長70㎝以内かつ10㎏の犬猫・1住戸2匹まで・規約有)
- 事務所使用不可
- 壁・天井クロス新規貼替
- トイレ手洗い水栓新規交換
- 浴室シャワー水栓新規交換
- 浴室換気乾燥機新規交換
- TOTO製トイレ新規交換
- 食器洗い乾燥機新規交換
- ガスコンロ新規交換
- ディスポーザー新規交換
- 照明器具新規設置
- エアコン5基新規設置
- 給湯器新規交換(追焚式)…等











































