運命のリノベーション
物件と出会える場所
物件と出会える場所
[過去取扱物件]
ユナイテッドアローズ社監修リノベーション
- 所在地 : 東京都新宿区
- 交通 : 都営新宿線『曙橋』駅徒歩4分
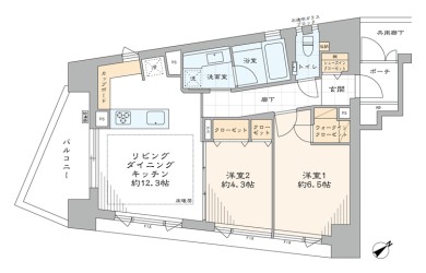
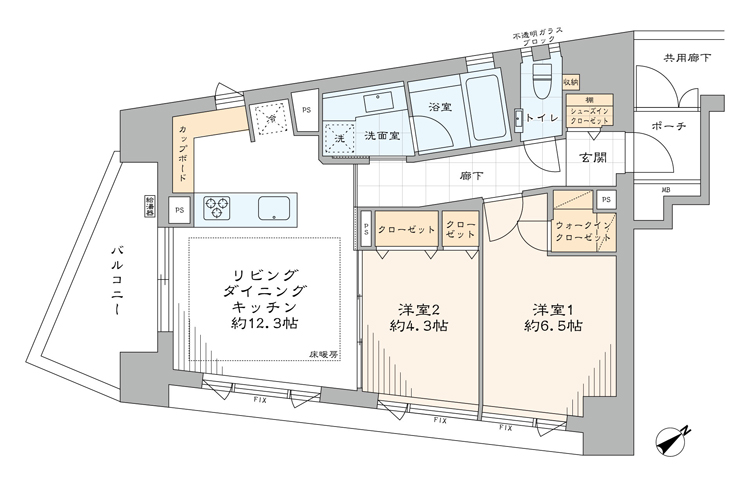
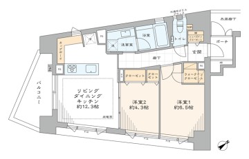
東京メトロ丸ノ内線『四谷三丁目』駅徒歩6分 - 間取り : 2LDK+WIC・SIC
- 専有面積 : 57.18 ㎡
- 2駅利用可能
- CATV導入済み
- オートロック
- トイレ新規交換
- ペット飼育可
- 光ファイバー導入済
(共用部まで) - 宅配ボックス
- 床暖房
- 浴室換気乾燥機
- 眺望良好
- 角部屋
- 買物便利
- 食器洗い機
- 駐輪場
物件概要
リノベーション内容
- 構造鉄骨鉄筋コンクリート造陸屋根地上13階建11階部分
- 間取り2LDK+WIC・SIC
- 専有面積57.18㎡(壁芯)
- バルコニー面積8.26 ㎡
- 土地権利所有権
- 用途地域商業地域
- 駐車場空無(35,000円/月)
- ペット飼育可(ペット飼育細則有)
- 事務所使用不可
- フローリング新規貼替
- 給水管・給湯管新規交換(専有部)
- 建具・玄関収納等新規交換
- オリジナル洗面化粧台新規交換
- TOTO製洗浄便座付トイレ新規交換
- LIXIL製ユニットバス新規交換(浴室換気乾燥機付)
- オリジナルシステムキッチン新規交換(食器洗い機付)
- 壁・天井クロス新規貼替
- 照明器具新規設置
- エアコン一基新規設置
- 床暖房マット新規設置
- 給湯器新規交換(追焚式)…等








































