運命のリノベーション
物件と出会える場所
物件と出会える場所
[過去取扱物件]
歴史と伝統、都心の利便性を兼ね揃えるー文京区小石川ー
- 所在地 : 東京都文京区
- 交通 : 都営三田線・都営大江戸線『春日』駅徒歩6分
東京メトロ南北線『後楽園』駅徒歩6分
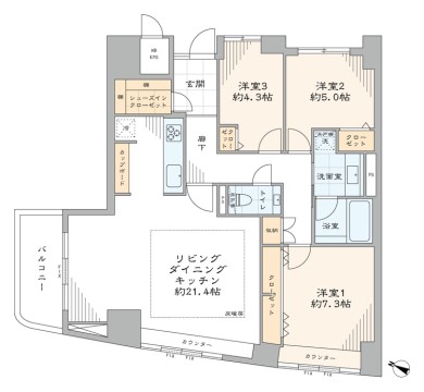
東京メトロ丸ノ内線『後楽園』駅徒歩11分 - 間取り : 3LDK+SIC
- 専有面積 : 90.53 ㎡
- オートロック
- 光ファイバー導入済
(共用部まで) - 床暖房
- 浴室換気乾燥機
- 買物便利
- 駐車場
- 駐輪場
物件概要
リノベーション内容
- 構造鉄骨鉄筋コンクリート造地下2階地上14階建13階部分
- 間取り3LDK+SIC
- 専有面積90.53㎡(壁芯)
- バルコニー面積5.47 ㎡
- 土地権利所有権
- 用途地域商業地域
- 駐車場空有(40,000円/月)
- ペット飼育不可
- 事務所使用不可
- フローリング新規貼替
- 給水管・給湯管新規交換(専有部)
- 建具・玄関収納等新規交換
- LIXIL製洗面化粧台新規交換
- TOTO製洗浄便座付トイレ新規交換
- TOTO製ユニットバス新規交換(浴室換気乾燥機付)
- LIXIL製システムキッチン新規交換(食器洗い機付)
- 壁・天井クロス新規貼替
- 照明器具新規設置
- セントラル空調機器新規交換
- 床暖房マット新規設置(LD)…等











































