運命のリノベーション
物件と出会える場所
物件と出会える場所
[過去取扱物件]
100年に一度と言われる再開発の進む渋谷
- 所在地 : 東京都渋谷区
- 交通 : 東京メトロ半蔵門線・東京メトロ副都心線・他『渋谷』駅徒歩2分
JR山手線・JR埼京線・東京メトロ銀座線・他『渋谷』駅徒歩3分
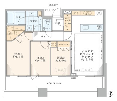
東京メトロ銀座線・東京メトロ半蔵門線『表参道』駅徒歩12分 - 間取り : 3LDK+WIC・SIC
- 専有面積 : 70.79 ㎡
- 2駅利用可能
- TVモニター付インターフォン
- オートロック
- トイレ新規交換
- トランクルーム
- バス停至近
- ペット飼育可
- 光ファイバー導入済
(共用部まで) - 宅配ボックス
- 床暖房
- 浴室換気乾燥機
- 眺望良好
- 買物便利
- 食器洗い機
- 駅近
- 駐車場
- 駐輪場
物件概要
リノベーション内容
- 構造鉄筋コンクリート造地下3階地上17階建14階部分
- 間取り3LDK+WIC・SIC
- 専有面積70.79㎡(壁芯)
- バルコニー面積15.00 ㎡
- 土地権利所有権
- 用途地域商業地域
- 駐車場空有(33,000円~45,000円/月)
- ペット飼育可(2匹まで・規約有)
- 事務所使用不可
- フローリング新規貼替
- 建具・玄関収納等新規交換
- 田中工藝製洗面化粧台新規交換
- TOTO製洗浄便座付トイレ新規交換
- LIXIL製ユニットバス新規交換(浴室換気乾燥機付)
- 田中工藝製システムキッチン新規交換(食器洗い機付)
- 壁・天井クロス新規貼替
- 照明器具新規設置
- エアコン2基新規設置
- 床暖房マット新規交換(LD)
- 給湯器新規交換(追焚式)…等










































