運命のリノベーション
物件と出会える場所
物件と出会える場所
[過去取扱物件]
歴史と緑が重なり合う街ー赤坂6丁目ー
- 所在地 : 東京都港区
- 交通 : 東京メトロ千代田線『赤坂』駅徒歩3分
東京メトロ銀座線・東京メトロ南北線『溜池山王』駅徒歩10分
東京メトロ南北線『六本木一丁目』駅徒歩10分
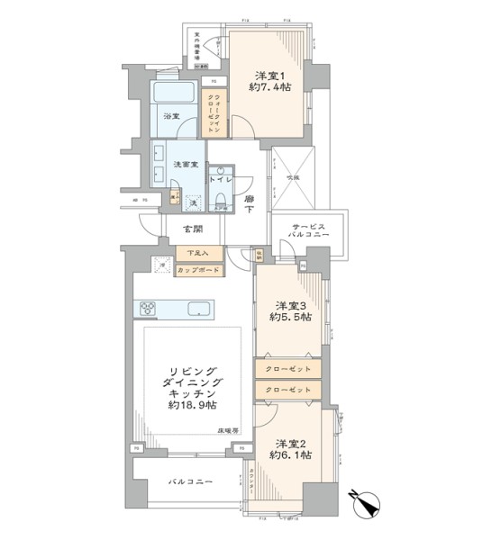
東京メトロ日比谷線・都営大江戸線『六本木』駅徒歩11分 - 間取り : 3LDK+WIC
- 専有面積 : 90.05 ㎡
- 2駅利用可能
- CATV導入済み
- オートロック
- トイレ新規交換
- ペット飼育可
- 光ファイバー導入済
(共用部まで) - 公園至近
- 宅配ボックス
- 床暖房
- 浴室換気乾燥機
- 眺望良好
- 緑多い住環境
- 角部屋
- 食器洗い機
- 駅近
- 駐輪場
物件概要
リノベーション内容
- 構造鉄筋コンクリート造地下1階地上12階建12階部分
- 間取り3LDK+WIC
- 専有面積90.05㎡(壁芯)
- バルコニー面積11.87m²※1 ㎡
- 土地権利所有権
- 用途地域第二種住居地域
- 駐車場空無(40,000円~64,000円/月)
- ペット飼育可(犬猫は2匹以内・使用細則有)
- 事務所使用不可
- フローリング新規貼替
- 建具・玄関収納等新規交換
- 田中工藝製洗面化粧台新規交換
- LIXIL製洗浄便座付トイレ新規交換
- LIXIL製ユニットバス新規交換(浴室換気乾燥機付)
- 田中工藝製システムキッチン新規交換(食器洗い機付)
- 給湯器新規交換(追焚式)
- 壁・天井クロス新規貼替
- 照明器具新規設置
- エアコン一基新規設置
- 床暖房マット新規交換(LD)…等











































