運命のリノベーション
物件と出会える場所
物件と出会える場所
[過去取扱物件]
閑静な住宅街ー世田谷区上町ー
- 所在地 : 東京都世田谷区
- 交通 : 東急田園都市線『三軒茶屋』駅徒歩10分
東急世田谷線『西太子堂』駅徒歩9分
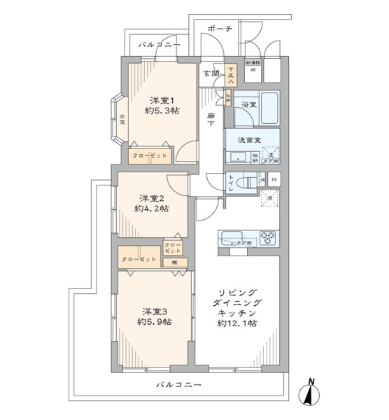
東急田園都市線『駒沢大学』駅徒歩10分 - 間取り : 3LDK
- 専有面積 : 62.10 ㎡
- CATV導入済み
- オートロック
- トイレ新規交換
- 両面バルコニー
- 光ファイバー導入済
(共用部まで) - 公園至近
- 宅配ボックス
- 浴室換気乾燥機
- 角部屋
- 買物便利
- 食器洗い機
- 駐輪場
物件概要
リノベーション内容
- 構造鉄筋コンクリート造地上4階建3階部分
- 間取り3LDK
- 専有面積62.10㎡(壁芯)
- バルコニー面積15.13 ㎡
- 土地権利所有権
- 用途地域第一種中高層住居専用地域
- 駐車場空無(31,000円/月)
- ペット飼育不可
- 事務所使用不可
- フローリング新規貼替
- 給水管・給湯管新規交換(専有部)
- 建具・玄関収納等新規交換
- TOTO製洗面化粧台新規交換
- TOTO製洗浄便座付トイレ新規交換
- TOTO製ユニットバス新規交換(浴室換気乾燥機付)
- 壁・天井クロス新規貼替
- 照明器具新規設置
- エアコン一基新規設置
- 給湯器新規交換(追焚式)
- LIXIL製システムキッチン新規交換(食器洗い機付)…等











































