運命のリノベーション
物件と出会える場所
物件と出会える場所
[過去取扱物件]
神宮の杜を望む眺望 南東角部屋
- 所在地 : 東京都渋谷区
- 交通 : 東京メトロ副都心線『北参道』駅徒歩6分
JR山手線『原宿』駅徒歩9分
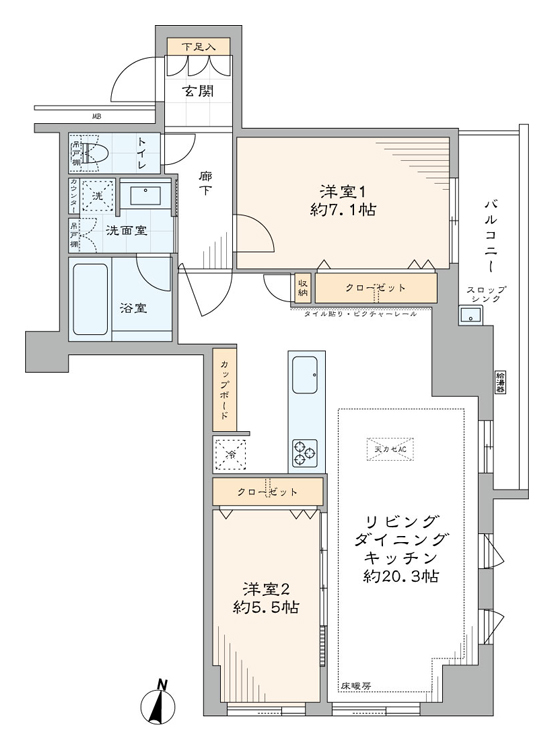
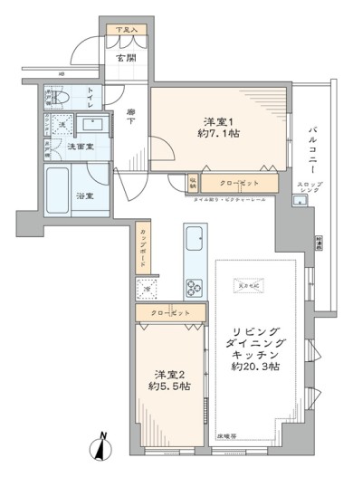
JR総武線『千駄ヶ谷』駅徒歩11分 - 間取り : 2LDK
- 専有面積 : 74.35 ㎡
- 2駅利用可能
- CATV導入済み
- TVモニター付インターフォン
- オートロック
- トイレ新規交換
- ペット飼育可
- 光ファイバー導入済
(共用部まで) - 宅配ボックス
- 床暖房
- 浴室換気乾燥機
- 眺望良好
- 角部屋
- 食器洗い機
- 駐車場
- 駐輪場
物件概要
リノベーション内容
- 構造鉄筋コンクリート造地下2地上22階建13階部分
- 間取り2LDK
- 専有面積74.35㎡(壁芯)
- バルコニー面積5.17 ㎡
- 土地権利所有権
- 用途地域第一種中高層住居専用地域・第二種住居地域
- 駐車場空有(40,000円~45,000円/月・中型車のみ最長5,300㎜最大幅2,050㎜最大高1,550㎜)
- ペット飼育可(成長時体長50㎝体重10kg以内・小型犬・猫等は2匹まで・規約有)
- 事務所使用不可
- フローリング新規貼替
- 建具・玄関収納等新規交換
- 田中工藝製洗面化粧台新規交換
- TOTO製洗浄便座付トイレ新規交換
- LIXIL製ユニットバス新規交換(浴室換気乾燥機付)
- 田中工藝製システムキッチン新規交換(食器洗い機付)
- 壁・天井クロス新規貼替
- 照明器具新規設置
- エアコン一基新規設置
- 給湯器新規交換(追焚式)
- 床暖房マット新規交換(LD)…等










































