運命のリノベーション
物件と出会える場所
物件と出会える場所
[過去取扱物件]
利便性・住環境に優れた立地ー目黒区南ー
- 所在地 : 東京都目黒区
- 交通 : 東急目黒線『西小山』駅徒歩12分
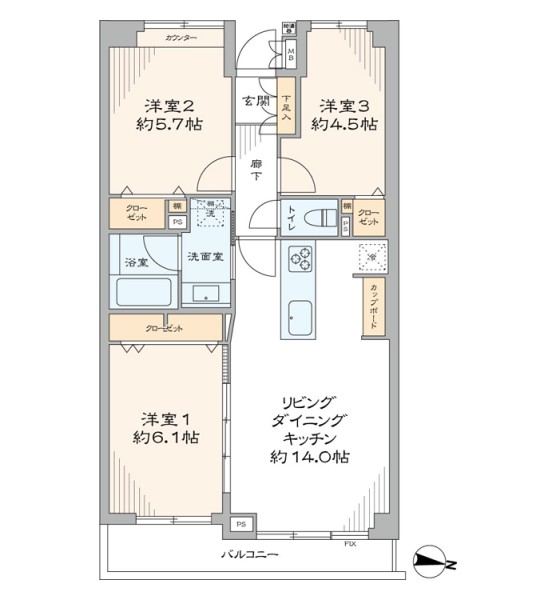
東急目黒線『洗足』駅徒歩13分 - 間取り : 3LDK
- 専有面積 : 67.32(壁芯) ㎡
- 2駅利用可能
- CATV導入済み
- TVモニター付インターフォン
- オートバス
- オートロック
- トイレ新規交換
- 光ファイバー導入済
(共用部まで) - 外観タイル貼
- 最上階
- 浴室換気乾燥機
- 眺望良好
- 買物便利
- 食器洗い機
- 駐車場
- 駐輪場
物件概要
リノベーション内容
- 構造鉄筋コンクリート造地上3階建3階部分
- 間取り3LDK
- 専有面積67.32(壁芯)㎡(壁芯)
- バルコニー面積7.88 ㎡
- 土地権利所有権
- 用途地域第一種中高層住居専用地域
- 駐車場空無(25,000円/月
- ペット飼育不可
- 事務所使用不可
- フローリング新規貼替
- 建具・玄関収納等新規交換
- オリジナル洗面化粧台新規交換
- TOTO製洗浄便座付トイレ新規交換
- LIXIL製ユニットバス新規交換(浴室換気乾燥機付)
- オリジナルシステムキッチン新規交換(食器洗浄乾燥機付)
- 壁・天井クロス新規貼替
- 照明器具新規設置
- エアコン一基新規設置
- 給湯器新規交換…等



