プレシス府中リヴェスタ 302号室|東京都都下全域
物件の価値を磨き上げた
リノベーション住宅
リノベーション住宅
プレシス府中リヴェスタ 302号室
価格6,490万円
月額ローンのシミュレーション
自宅からバーチャル内覧会を開催中です。
オンラインで物件をご案内します。
オンラインで物件をご案内します。
お電話での問い合わせ(10:00-19:00)
物件概要
リノベーション内容
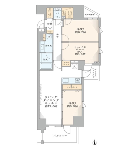
- 構造鉄筋コンクリート造地上14階建3階部分
- 間取り2SLDK+WIC・SIC
- 専有面積68.31㎡(壁芯)
- バルコニー面積6.66 ㎡
- 築年月2015(平成27)年10月
- 総戸数27戸
- 土地権利所有権
- 用途地域商業地域・第一種住居地域
- 現況空室
- 引渡日即可
- 駐車場空無(16,000円/月)
- ペット飼育可(2頭まで・体長50㎝体重10㎏未満・規約有)
- 事務所使用不可
- 管理費15,710円/月
- 修繕積立金19,290円/月
- 管理形態全部委託管理(日勤)
- 管理会社伏見管理サービス㈱
- 施工会社埼玉建興㈱
- 旧分譲会社一建設㈱
- 設備都市ガス・公営水道・本下水・EV・オートロック・宅配ボックス
- 備考駐輪場:空有(200円~300円/月)
バイク置場:空無(1,000円/月)
インターネット(フレッツ光)
CATV(J:COM)
修繕積立金総額:39,855,443円(2025年9月現在)
固定資産税・都市計画税:150,120円(2025年度概算)
※ 修繕積立金改定予定有 2026年10月より20,850円 - 修繕履歴2022年8月 共用鉄部・防水保護塗装工事
- フローリング新規貼替
- 壁・天井クロス新規貼替
- 建具・玄関収納等新規交換
- Panasonic製洗面化粧台新規交換
- TOTO製洗浄便座付トイレ新規交換
- LIXIL製ユニットバス新規交換(浴室換気乾燥機付)
- LIXIL製システムキッチン新規交換(食器洗い機付)
- 照明器具新規設置
- エアコン1基新規設置
- 給湯器新規交換(追焚式)…等
- ※リノベーション内容は、変更になる場合がございます
Google Maps Loading...
- 所在地 : 東京都府中市八幡町3-2-1
- 交通 : 京王線『東府中』駅徒歩6分
京王線『府中』駅徒歩14分
自宅からバーチャル内覧会を開催中です。
オンラインで物件をご案内します。
オンラインで物件をご案内します。
お電話での問い合わせ(10:00-19:00)











































