ナイスアーバンスクエア新川崎エアリーコート 504号室|神奈川県川崎市
物件の価値を磨き上げた
リノベーション住宅
リノベーション住宅
ナイスアーバンスクエア新川崎エアリーコート 504号室
オープンルーム
価格5,980万円
月額ローンのシミュレーション
オープンルーム
開催中
開催中
【開催日時】1/24(土)、1/25(日)10:00~18:00 ※予約可能枠として11:00~、13:00~、15:00~、17:00~がございます。
ご希望の方は、ビデオ通話での内見が可能です。
自宅からバーチャル内覧会を開催中です。
オンラインで物件をご案内します。
オンラインで物件をご案内します。
お電話での問い合わせ(10:00-19:00)
物件概要
リノベーション内容
- 構造鉄筋コンクリート造地上5階建5階部分
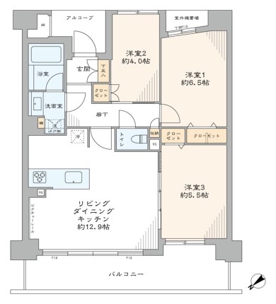
- 間取り3LDK
- 専有面積61.44㎡(壁芯)
- バルコニー面積11.66 ㎡
- 築年月2011(平成23)年10月
- 総戸数150戸
- 土地権利所有権
- 用途地域第一種中高層住居専用地域
- 現況空室
- 引渡日即可
- 駐車場空有(5,000円~12,000円/月)※車種に制限有
- ペット飼育可(使用細則有)
- 事務所使用不可
- 管理費9,570円/月
- 修繕積立金15,360円/月
- 管理形態全部委託管理(日勤)
- 管理会社ナイスコミュニティー㈱
- 施工会社東亜建設工業㈱
- 旧分譲会社ナイス㈱
- 設備都市ガス・公営水道・本下水・EV・オートロック・宅配ボックス
- 備考駐輪場:空有(50円~200円/月)
バイク置場:空無(1,500円/月)
インターネット(YOUケーブル・NTT・KDDI)
CATV(YOUケーブル)
修繕積立金総額:332,938,449円(2025年10月末現在)
固定資産税・都市計画税:122,389円(2025年度概算)
そ の 他 : 2,180円/月(CATV料1,980円・町会費200円) - 修繕履歴
- フローリング新規貼替
- 壁・天井クロス新規貼替
- 給水管・給湯管新規交換(専有部)
- 建具・玄関収納等新規交換
- Panasonic製洗面化粧台新規交換
- TOTO製洗浄便座付トイレ新規交換
- TOTO製ユニットバス新規交換(浴室換気乾燥機付)
- LIXIL製システムキッチン新規交換(食器洗い機付)
- 照明器具新規設置
- エアコン一基新規設置
- 給湯器新規交換(追焚式)…等
Google Maps Loading...
- 所在地 : 神奈川県川崎市幸区古川町87
- 交通 : JR南武線『鹿島田』駅徒歩12分
JR横須賀線・JR湘南新宿ライン『新川崎』駅徒歩17分
自宅からバーチャル内覧会を開催中です。
オンラインで物件をご案内します。
オンラインで物件をご案内します。
お電話での問い合わせ(10:00-19:00)











































