白金タワー 2609号室|東京都港区
物件の価値を磨き上げた
リノベーション住宅
リノベーション住宅
白金タワー 2609号室
価格39,880万円
月額ローンのシミュレーション
自宅からバーチャル内覧会を開催中です。
オンラインで物件をご案内します。
オンラインで物件をご案内します。
お電話での問い合わせ(10:00-19:00)
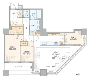
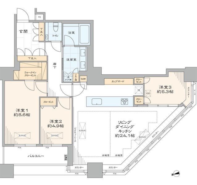
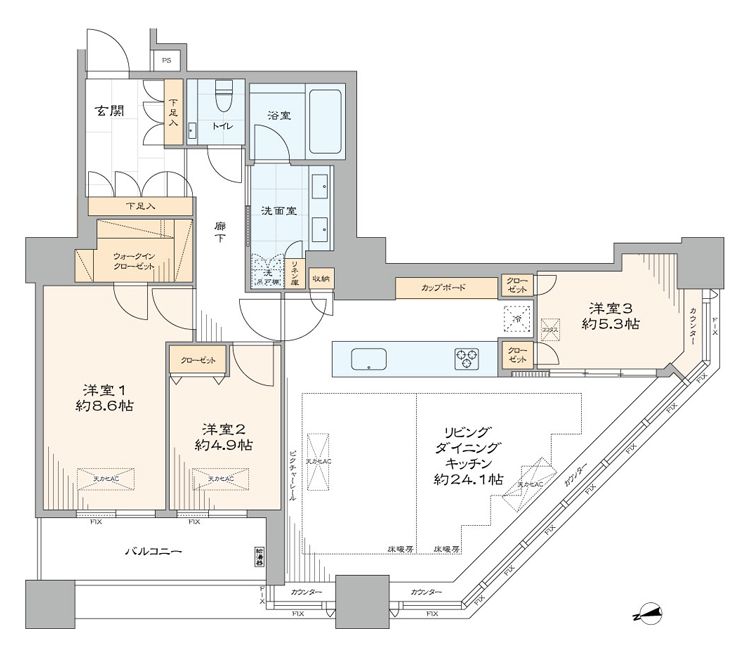
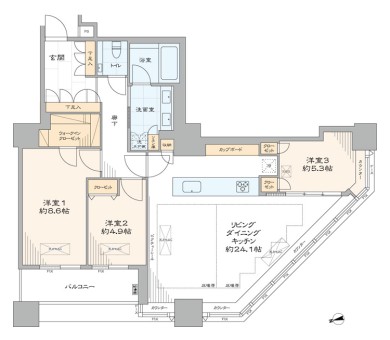
物件概要
リノベーション内容
- 構造鉄筋コンクリート造一部鉄骨造地下3階地上42階建26階部分
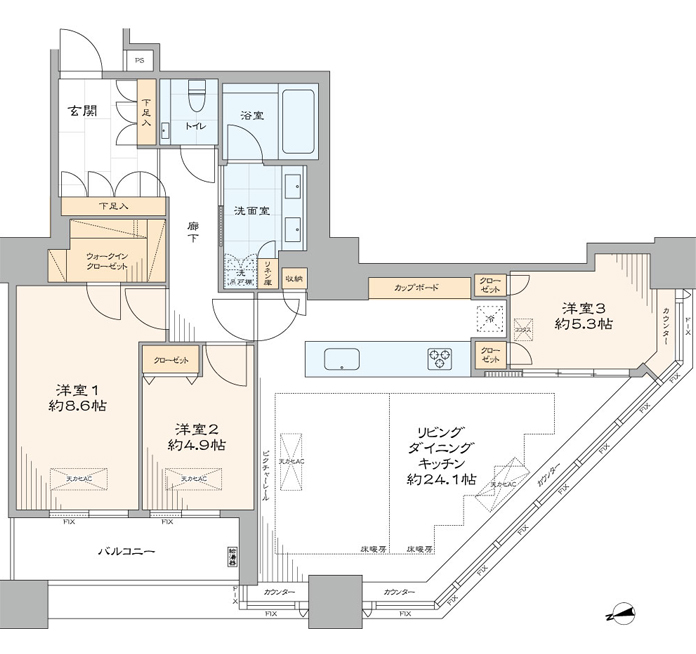
- 間取り3LDK+WIC
- 専有面積101.33㎡(壁芯)
- バルコニー面積6.85 ㎡
- 築年月2005(平成17)年9月
- 総戸数335戸
- 土地権利所有権
- 用途地域準工業地域・商業地域
- 現況空室
- 引渡日即可
- 駐車場空無(32,000円~45,000円/月)
- ペット飼育可(2匹以内・体長70㎝体高40㎝体重10㎏以内・規約有)
- 事務所使用不可
- 管理費21,200円/月
- 修繕積立金38,572円/月
- 管理形態全部委託管理(日勤)
- 管理会社三井不動産レジデンシャルサービス㈱
- 施工会社鹿島建設㈱・㈱長谷工コーポレーション・新日本製鐵㈱
- 旧分譲会社住友商事㈱・三井物産㈱・オリックスリアルエステート㈱・鹿島建設㈱
- 設備都市ガス・公営水道・公共下水・EV・オートロック・宅配ボックス
- 備考駐輪場:空有(3,600円/年)
バイク置場:空有(2,000円~4,000円/月)
インターネット(つなぐネット)・CATV(みなとケーブル・個別契約)
トランクルーム:空無(800~1,300円/月)
修繕積立金総額:1,293,827,894円(2025年2月現在)
固定資産税・都市計画税:385,901円(2025年度概算)
インターネット料 : 1,620円/月 - 修繕履歴2025年 地下駐車場改修工事
2024年 セキュリティインターホン更新
- フローリング新規貼替
- 壁・天井クロス新規貼替
- 給湯管新規交換(専有部)
- 建具・玄関収納等新規交換
- 田中工藝製洗面化粧台新規交換
- TOTO製洗浄便座付トイレ新規交換
- LIXIL製ユニットバス新規交換(浴室換気乾燥機付)
- 田中工藝製システムキッチン新規交換(食器洗い機付)
- 照明器具新規設置
- エアコン4基新規設置
- 床暖房マット新規設置(LD)
- 給湯器新規交換(追焚式)…等
Google Maps Loading...
- 所在地 : 東京都港区白金1-17-1
- 交通 : 東京メトロ南北線・都営三田線『白金高輪』駅徒歩1分
自宅からバーチャル内覧会を開催中です。
オンラインで物件をご案内します。
オンラインで物件をご案内します。
お電話での問い合わせ(10:00-19:00)











































