リノベーション事例とお客様の声のご紹介
- 工事費非公開
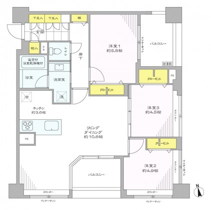
- 間取り3LDK
- 所在地東京都中野区
- 専有面積67.67㎡
- 家族構成ファミリー
- 築年月平成9年7月
-
リノベーションに物件情報を検索する
ぴったりの物件を知りたい方は -
豊富な写真付き無料で資料を見る
リノベーション事例を見たい方は -
具体的に考えるなら「イベント・無料セミナー・イベントに参加する
セミナー」に参加がおすすめ
- 1広々したLDK独立キッチンの壁を撤去してフラット対面のキッチンを採用し、一体感のあるLDKとして広がりを持たせました。
- 2充実した収納各部屋はもちろん、下足入等の共用部にも多くの収納を設けています。
- 3防音・断熱を考慮したインナーサッシ全窓にインナーサッシが取り付けてあり、大きい開口でありながら防音・断熱性もあるようになっています。
-
キッチンで分割されていたLDをフラット対面のキッチンを採用することで、一体感のある空間になるようにリノベーションしています。
玄関土間を広げてベビーカーや自転車を置けるようにしました。
リノベーション内容
- ○フローリング新規貼替
- ○建具・玄関収納等新規交換
- ○壁・天井クロス新規貼替
- ○給湯器(20号)新規交換
- ○照明器具新規設置
- ○エアコン一基新規設置
- ○LIXIL製洗面化粧台新規交換
- ○LIXIL製洗浄便座付トイレ新規交換
- ○TOTO製追焚機能付ユニットバス新規交換(浴室換気乾燥機付)
- ○LIXIL製システムキッチン新規交換(人造大理石トップ)
- ○ハウスクリーニング …等
気になることがあればお気軽にお問い合わせください。リノベーションアドバイザーが何でもお答えいたします。(10:00-19:00)
オススメの事例
-
- 小上がりのある暮らし
兵庫県神戸市
間取り:1LDK+WIC
- 小上がりのある暮らし
-
- ヒトとモノに合わせた暮らし
東京都大田区
間取り:1LDK
- ヒトとモノに合わせた暮らし
-
- 家族みんなが楽しく暮らせるゆとりの空間を実現させた家
神奈川県藤沢市
間取り:3LDK
- 家族みんなが楽しく暮らせるゆとりの空間を実現させた家
-
- 日中と夜で空間を分ける、心地よい1日の導線を考えた設計
東京都港区
間取り:2LDK+マルチルーム
- 日中と夜で空間を分ける、心地よい1日の導線を考えた設計
テーマ:モダンの事例
-
- 支えをかたちに
大阪市西区
間取り:1LDK+WIC
- 支えをかたちに
-
- 光と木と、ぬくもりと。
兵庫県神戸市
間取り:1LDK+WIC
- 光と木と、ぬくもりと。
-
- 木と暮らす
東京都中央区
間取り:3LDK
- 木と暮らす
-
- 隠し扉で創るPUBLIC&PRIVATE
東京都渋谷区
間取り:1LDK+WIC
- 隠し扉で創るPUBLIC&PRIVATE



















