リノベーション事例とお客様の声のご紹介
- 工事費非公開
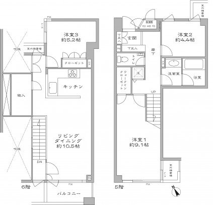
- 間取り3LDK
- 所在地東京都目黒区
- 専有面積84.18㎡
- 家族構成一人暮らし
- 築年月平成7年12月
-
リノベーションに物件情報を検索する
ぴったりの物件を知りたい方は -
豊富な写真付き無料で資料を見る
リノベーション事例を見たい方は -
具体的に考えるなら「イベント・無料セミナー・イベントに参加する
セミナー」に参加がおすすめ
- 1自然環境に恵まれた、交通利便性の良いマンションJR山手線『目黒』駅徒歩7分、東急目黒線『不動前』駅徒歩9分、目黒川から1本入った閑静な住宅街に佇むマンションです。
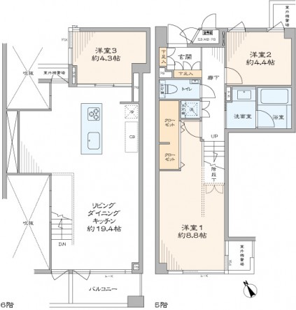
春には川沿いの桜並木が満開になり、通勤や通学、散歩をしながらお花見を楽しめます。 - 2アイランドキッチンが主役のLDK約19.4帖のLDKには、大きなアイランドキッチンと収納量たっぷりのカップボードを備え付けています。
LDKの中でも特に目を引くダークグレーのアイランドキッチン、実はリノベーション前は壁付けのL字型キッチンでした。
アイランドキッチンにすることで、おしゃれな空間と開放感が生まれ、リビングダイニングにいる家族との会話も弾みます。
キッチン前にある天井が低く下がったスペース、リノベーション前は物入れでした。この物入れをなくすことで、約19.4帖の広いリビングダイニングが実現しました。
キッチンを奥に進むと、コーナーサッシ窓付きの明るく開放的な洋室3(約4.3帖)があります。
洋室3は床にレールがない引き戸を採用しているので、戸を開放することでリビングダイニングの延長としてもお使いいただけます。
フローリングは、天然木の質感を感じられる突板で、カラーは渋みのあるブラックウォルナットを採用しました。 - 3オンとオフを分けられる、嬉しいメゾネット
リノベーション内容
- フローリング新規貼替
- 給水管・給湯管新規交換(専有部)
- 建具・玄関収納等新規交換
- LIXIL製洗面化粧台新規交換
- TOTO製洗浄便座付トイレ新規交換
- TOTO製追焚機能付ユニットバス新規交換(浴室換気乾燥機付)
- 田中工藝製システムキッチン新規交換(食器洗浄乾燥機付)
- 壁・天井クロス新規貼替
- 照明器具新規設置 …等
気になることがあればお気軽にお問い合わせください。リノベーションアドバイザーが何でもお答えいたします。(10:00-19:00)
オススメの事例
-
- グレーと木が調和する北欧モダンな住まい
東京都港区
間取り:2LDK
- グレーと木が調和する北欧モダンな住まい
-
- 愛犬とのびのび暮らせる家
東京都目黒区
間取り:2LDK
- 愛犬とのびのび暮らせる家
-
- まるでNYのSOHO?!ワイルドで大胆かつ機能性も重視したお部屋
東京都渋谷区
間取り:1R
- まるでNYのSOHO?!ワイルドで大胆かつ機能性も重視したお部屋
-
- 自然光と暮らす
大阪市西区
間取り:1LDK+WIC
- 自然光と暮らす
テーマ:おしゃれの事例
-
- 神楽坂と暮らす
東京都新宿区
間取り:1LDK+WIC
- 神楽坂と暮らす
-
- インダストリアルな大人リノベ
神奈川県川崎市
間取り:1LDK
- インダストリアルな大人リノベ
-
- 心地よさは、ちょうどいいバランスから
東京都新宿区
間取り:2LDK+WIC
- 心地よさは、ちょうどいいバランスから
-
- 光あふれるナチュラルリビング
東京都港区
間取り:3LDK+納戸+WIC・SIC
- 光あふれるナチュラルリビング





































