リノベーション事例とお客様の声のご紹介
- 工事費非公開
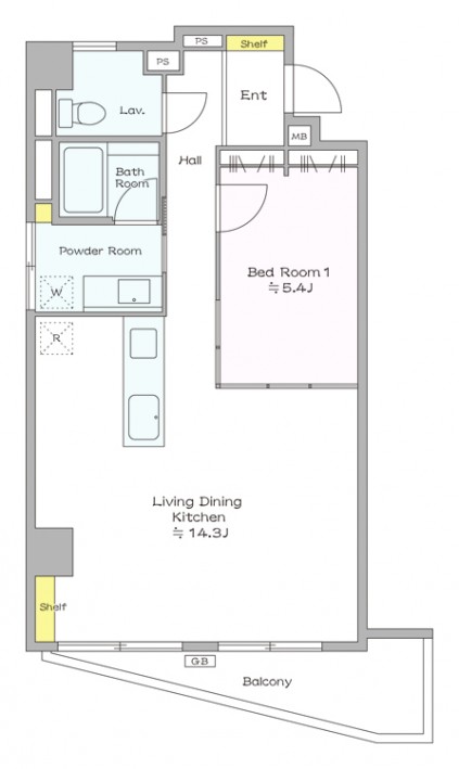
- 間取り1LDK
- 所在地東京都新宿区
- 専有面積50.28㎡
- 家族構成二人暮らし
- 築年月昭和50年4月
-
リノベーションに物件情報を検索する
ぴったりの物件を知りたい方は -
豊富な写真付き無料で資料を見る
リノベーション事例を見たい方は -
具体的に考えるなら「イベント・無料セミナー・イベントに参加する
セミナー」に参加がおすすめ
- 1まるでキッチンに見えない!オークの木とアイアンで出来たおしゃれなキッチン!LDKの中でもひときわ存在感を放つキッチン。
オークの無垢材と黒いフレームがインテリアにマッチします。
毎週ホームパーティしたくなるようなキッチンです。 - 2明るい窓のある寝室明るく開放的な寝室。クローゼットスペースも充実させました。
LDKと緩やかにつながっているところもいいところ。 - 3見ていて飽きないヘリンボーンの床自分好みのインテリアを合わせて個性を出したいヘリンボーン。
モルタルの壁と合わせて男前な印象にしました。
-
3つの駅が利用可能で伊勢丹新宿店も徒歩圏内の便利な立地。外観はレトロ感のあるマンションです。シングルの方や結婚したばかりの夫婦が住むのにちょうど良い、フレキシビリティのある間取りにしました。
リノベーション内容
- ○フロアタイル新規貼替(サンゲツ・ヘリンボーン貼)
- ○壁・天井クロス新規貼替
- ○給湯器新規交換
- ○建具新規交換(Panasonic)
- ○LIXIL製洗面化粧台新規交換(角型ベッセル式)
- ○LIXIL製洗浄便座付トイレ新規交換
- ○LIXIL製追焚機能付ユニットバス新規交換(1216サイズ)
- ○ウッドワン製システムキッチン新規交換(フレームキッチン) …等
気になることがあればお気軽にお問い合わせください。リノベーションアドバイザーが何でもお答えいたします。(10:00-19:00)
オススメの事例
-
- 関西と関東の価格差に戸惑った、転勤族のマンション購入体験談
東京都武蔵野市
間取り:3LDK+WIC・SIC
- 関西と関東の価格差に戸惑った、転勤族のマンション購入体験談
-
- キッチンが主役の家
東京都墨田区
間取り:2LDK+WTC・SIC
- キッチンが主役の家
-
- 自分が思い描いた通りの部屋づくりを叶え、人生はさらに豊かに
東京都三鷹市
間取り:1LDK
- 自分が思い描いた通りの部屋づくりを叶え、人生はさらに豊かに
-
- 過去と未来を結ぶ場所
大阪市天王寺区
間取り:2LDK+WIC
- 過去と未来を結ぶ場所




































