リノベーション事例とお客様の声のご紹介
- 工事費1,500万円
- 間取り2LDK+WTC
- 所在地大阪府吹田市
- 専有面積76.58㎡
- 家族構成一人暮らし
- 築年月平成7年11月
-
リノベーションに物件情報を検索する
ぴったりの物件を知りたい方は -
豊富な写真付き無料で資料を見る
リノベーション事例を見たい方は -
具体的に考えるなら「イベント・無料セミナー・イベントに参加する
セミナー」に参加がおすすめ
- 1職場から近く眺望も良い好立地物件賃貸物件にお住まいだったM様は、2023年の初め頃から物件探しをスタート。以前から「いつかは家を買いたい」と思っていたそうで、会社の後輩が中古マンションをリノベーションした話を聞いたことがきっかけで本格的に動き出したといいます。物件探しとリノベーションをワンストップでやってくれる会社を探し、「マイリノ オオサカ」を見つけて足を運んでくださいました。
「リノベーション会社を探すにあたっては、最初にお会いする営業さんとの相性が良くなければ絶対に買わないと決めていました。今回、たまたま1つ目に見に行ったのがマイリノで、最初にお会いした営業担当の方がとても話しやすい方だったのでマイリノに決めました。物件探しでは、営業担当の方と一緒に2件内見に行き、その2件目がこの物件でした。職場から近く便利な立地であること、バルコニーの目の前に建物がなく見晴らしや陽当たりが良いこと、淀川花火も見られることなどから、この物件の購入を決めました。エリアや築年数の希望条件を少し緩和したことで選択肢が広がり、良い物件と出会うことができました。」(M様) - 2機能性とシンプルさを兼ね備えた住まい

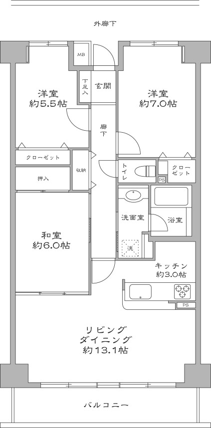
間取りは回遊性が高く、隠す収納や便利な水まわり設備を取り入れて家事が楽になるように設計。内装は白とグレー、木の3色でシンプルにまとめました。
玄関を入って左には、靴を履いたり脱いだりするときの腰掛けや、買い物帰りの荷物置き場としても使える便利な造作ベンチを2脚設置。ご友人を招いてホームパーティーするときはダイニングに運んで椅子代わりとしても使うことができます。玄関の奥にはゴルフバッグが入る収納も付いています。
玄関と引き戸でつながる洋室2(約4.2帖)は、ピアノを置いて趣味の部屋としても、来客の宿泊スペースとしても使えます。クローゼットには普段使わないスーツケースや来客用の布団などを収納しています。
洋室1(約6.4帖)の寝室は、ウォークスルークローゼットでリビングとつながっており、廊下を通らずに寝室とリビングを行き来することができます。
リビングは、掃除のしやすさを考えて壁掛けテレビを採用。クローゼットも新設して、コンセントやWi-Fiルーター、書類、小物を収納することで、さらにすっきりとした空間に。
「レザーと木でデザインされているソファを置くことが夢で、時間をかけて探しました。家探しをする前から、テレワークのときに使える大きなテーブルも欲しいと思っていたので、サイズを決めて造作してもらいました。来客があったときは向きを変えて使えて、書類を並べながらパソコン作業もできてとても便利です。
設備面では、お風呂が全てといっても良いくらい、一番譲れない部分だったというM様。
「毎日お湯を張ってのんびり入りたいタイプなので、リビングが狭くなっても浴室だけは広くして欲しいと伝えました。掃除を楽にしたいと思っていたので、自動洗浄機能を付けて、床に物を置かないようにシャンプーや桶などはマグネットで壁に取り付けています。浴室乾燥や肩湯もあり、以前より入浴剤を選ぶのが楽しくなりました。」(M様)
キッチンは、リビングに入ってきたときに冷蔵庫や電子レンジなどが見えないように向きを検討し、換気扇もリビング側から見えても目立たない白を採用しました。大きな食洗機やオート調理機能が付いた大阪ガスのコンロを実装し、キッチンにも家事を楽にするこだわりが詰まっています。
「以前と比べて本当に広くて使いやすくなりました。カップボードに好きなお皿が入っていて、料理中に振り向けばすぐに取り出せるのが良いですね。食器集めが好きなので、これからも色々な料理ができたらと思っています。」(M様)
洗面スペースは、遊びに来た人が誰でも気軽に手を洗えるように、扉がない形にしました。お手洗いはタンクレストイレで、すっきりと掃除がしやすく、壁面には埋め込み収納を造作。トイレットペーパーや掃除用品などを目立たないように収納できます。 - 3リノベーションは担当者との相性が大切

南向きのリビングは陽当たりが良く、窓に二重サッシを取り付けているため、冬でもエアコンいらずの暖かさです。前の家とは比較にならないくらいエアコンを使うことが減ったそう。
「ダイニングテーブルの窓際の席からテレビを見ているときに幸せを感じます。“自分の家"を買って本当に良かったと思いますね。リノベーションでは、営業担当の方や設計担当の方との相性の大切さを感じました。担当の方との相性が良いと遠慮せずに希望をしっかり伝えられるので、完成したときの満足度が一段と上がると思います。今後もシンプルな状態をキープしつつ、絵画を飾ったり、グリーンを増やしたり、インテリアを楽しんでいきたいです。」(M様)
-
マイリノ担当者からのコメント
M様とは、とてもお話しやすく、お忙しい中でもスムーズにやり取りさせていただきました。
設計・施工チームとも協力し、順調に進んだのではないかと思っています。
お忙しい生活をされているかと思いますので、疲れを癒すスペースであり続けて欲しいと思います。(営業担当)
M様の温かい人柄のおかげで、毎回打ち合わせが盛り上がり、とても楽しかったです。
初めにいくつかのプランかご提案させていただいた際に、かなり独創的な間取りに対しても「そんな発想もあるんだ」と感心されつつ、ユニークなツッコミもしていただきました。
キッチン前のカウンター部分をどんなデザインにするかは少し悩みましたが、いくつかスケッチを描きながら相談していくうちに、これだ!というデザインにまとまりました。
最後まで空間の基調となるグレーの色合いにこだわりを持たれていて、最終的には空間を静かに支えるグレーの流れが見え、感嘆いたしました。
空間の色味を抑えることでテーブルやカウンターの存在感をしっかりと感じられ、シンプルかつ凛とした素敵なインテリアに仕上がり、余白も備えながら個性もある上質な空間になったと思います。
ロケーションも素晴らしいお家で、窓から見える景色と個性の光る空間のコラボが実現できました。
ご家族やご友人とお気に入りのテーブルを囲んで、窓からの景色を眺めながら、大切なひと時を楽しくお過ごしいただければと思います。リビングから見える淀川の花火もお楽しみください。(設計担当)
リノベーション内容
- フローリング新規施工
- 壁・天井クロス新規施工
- 建具新規交換
- 照明器具新規設置
- システムキッチン新規交換(食器洗浄乾燥機付)
- ユニットバス新規交換(浴室換気乾燥機付)
- 洗面化粧台新規交換
- 洗浄便座付トイレ新規交換
- ウォークスルークローゼット、カップボード新設
- 玄関ベンチ、キッチンカウンター、ダイニングテーブル新規造作
- LDK内窓設置
- エアコン2基新規設置(洋室隠蔽配管工事)
- ハウスクリーニング …等
気になることがあればお気軽にお問い合わせください。リノベーションアドバイザーが何でもお答えいたします。(10:00-19:00)
オススメの事例
-
- 時が経っても変わらないクオリティと資産価値。ユナイテッドアローズ社監修のリノベーション
東京都港区
間取り:2LDK
- 時が経っても変わらないクオリティと資産価値。ユナイテッドアローズ社監修のリノベーション
-
- 広い土間が出迎えてくれる、どんなインテリアにも似合う家
千葉県柏市
間取り:1LDK+WIC
- 広い土間が出迎えてくれる、どんなインテリアにも似合う家
-
- アートギャラリーのような洗練された空間
神奈川県川崎市
間取り:1LDK+ワークスペース+WIC
- アートギャラリーのような洗練された空間
-
- 人が集い、コミュニケーションが生まれる場所
東京都渋谷区
間取り:1LDK+WIC
- 人が集い、コミュニケーションが生まれる場所
テーマ:おしゃれの事例
-
- 神楽坂と暮らす
東京都新宿区
間取り:1LDK+WIC
- 神楽坂と暮らす
-
- インダストリアルな大人リノベ
神奈川県川崎市
間取り:1LDK
- インダストリアルな大人リノベ
-
- 心地よさは、ちょうどいいバランスから
東京都新宿区
間取り:2LDK+WIC
- 心地よさは、ちょうどいいバランスから
-
- 光あふれるナチュラルリビング
東京都港区
間取り:3LDK+納戸+WIC・SIC
- 光あふれるナチュラルリビング










































