運命のリノベーション
物件と出会える場所
物件と出会える場所
[過去取扱物件]
歴史と利便性が息づく、千代田区五番町
- 所在地 : 東京都千代田区
- 交通 : JR総武緩行線・東京メトロ有楽町線・東京メトロ南北線・都営新宿線『市ヶ谷』駅徒歩3分
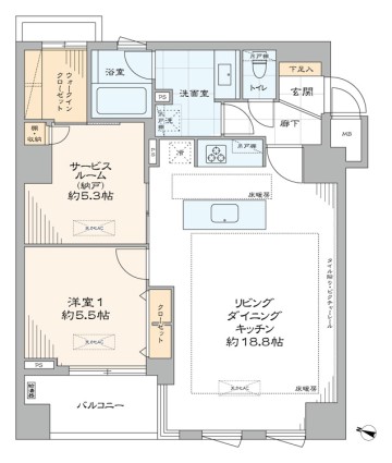
東京メトロ有楽町線『麹町』駅徒歩5分 - 間取り : 1SLDK+WIC
- 専有面積 : 65.75 ㎡
- 2駅利用可能
- CATV導入済み
- TVモニター付インターフォン
- オートロック
- トイレ新規交換
- ペット飼育可
- 光ファイバー導入済
(共用部まで) - 公園至近
- 宅配ボックス
- 床暖房
- 浴室換気乾燥機
- 買物便利
- 食器洗い機
- 駅近
- 駐車場
- 駐輪場
物件概要
リノベーション内容
- 構造鉄骨鉄筋コンクリート造鉄筋コンクリート造地下2階地上14階建5階部分
- 間取り1SLDK+WIC
- 専有面積65.75㎡(壁芯)
- バルコニー面積5.27 ㎡
- 土地権利所有権
- 用途地域第一種住居地域・第二種住居地域
- 駐車場空有(31,900円~44,000円/月)
- ペット飼育可(規約有)
- 事務所使用不可
- フローリング新規貼替
- 給水管・給湯管新規交換(専有部)
- 建具・玄関収納等新規交換
- 田中工藝製洗面化粧台新規交換
- TOTO製洗浄便座付トイレ新規交換
- LIXIL製ユニットバス新規交換(浴室換気乾燥機付)
- 田中工藝製システムキッチン新規交換(食器洗い機付)
- 壁・天井クロス新規貼替
- 照明器具新規設置
- エアコン3基新規設置
- 床暖房マット新規設置(LDK)
- 給湯器新規交換(追焚式)…等










































