運命のリノベーション
物件と出会える場所
物件と出会える場所
[過去取扱物件]
2004年築 / 旧分譲会社・施工会社:鹿島建設
- 所在地 : 東京都千代田区
- 交通 : JR山手線・JR京浜東北線『秋葉原』駅徒歩5分
東京メトロ日比谷線『秋葉原』駅徒歩8分
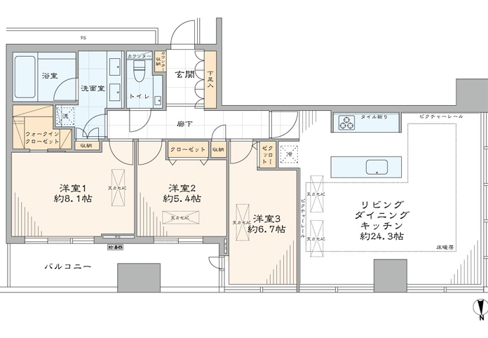
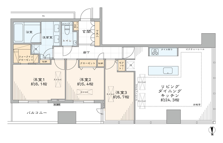
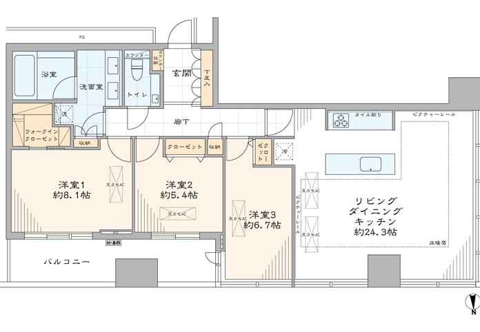
東京メトロ銀座線『末広町』駅徒歩3分 - 間取り : 3LDK+WIC
- 専有面積 : 98.00 ㎡
- 2駅利用可能
- CATV導入済み
- オートロック
- トイレ新規交換
- ペット飼育可
- 光ファイバー導入済
(共用部まで) - 宅配ボックス
- 床暖房
- 浴室換気乾燥機
- 角部屋
- 買物便利
- 食器洗い機
- 駅近
物件概要
リノベーション内容
- 構造鉄筋コンクリート造地下1階地上40階建28階部分
- 間取り3LDK+WIC
- 専有面積98.00㎡(壁芯)
- バルコニー面積12.88 ㎡
- 土地権利所有権
- 用途地域商業地域
- 駐車場空無(30,000円~50,000円/月)
- ペット飼育可(犬・猫計2頭まで・飼育細則有)
- 事務所使用主たる用途を住居とした事務所のみ可・事務所専用使用は不可
- フローリング新規貼替
- 給水管・給湯管新規交換(専有部)
- 建具・玄関収納等新規交換
- 田中工藝製洗面化粧台新規交換
- TOTO製洗浄便座付トイレ新規交換
- LIXIL製ユニットバス新規交換(浴室換気乾燥機付)
- 田中工藝製システムキッチン新規交換(食器洗い機付)
- 壁・天井クロス新規貼替
- 照明器具新規設置
- エアコン5基新規設置
- 床暖マット新規交換(LD)
- 給湯器新規交換(追焚式)…等











































