パークコート六本木ヒルトップ 702号室|東京都港区
物件の価値を磨き上げた
リノベーション住宅
リノベーション住宅
パークコート六本木ヒルトップ 702号室
価格44,980万円
月額ローンのシミュレーション 価格改定
自宅からバーチャル内覧会を開催中です。
オンラインで物件をご案内します。
オンラインで物件をご案内します。
お電話での問い合わせ(10:00-19:00)
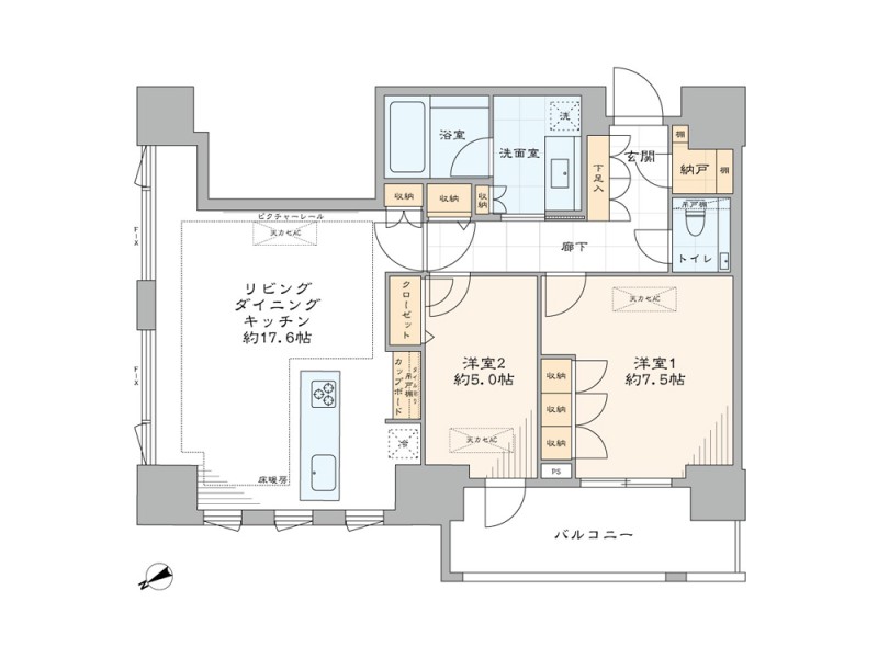
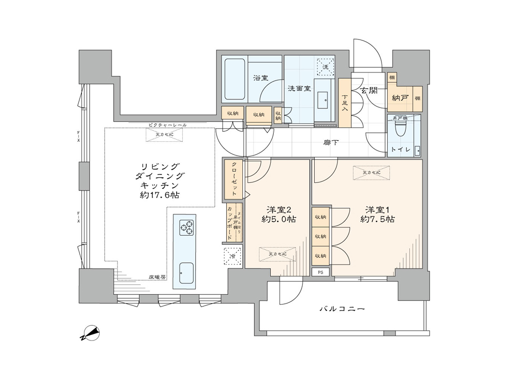
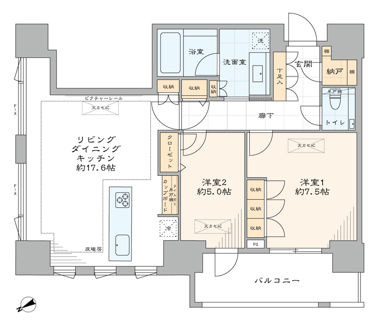
物件概要
リノベーション内容
- 構造鉄筋コンクリート造地下2階地上27階建7階部分
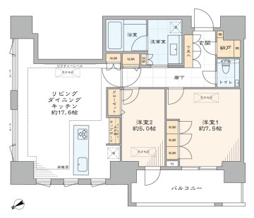
- 間取り2LDK+納戸
- 専有面積71.37㎡(壁芯)
- バルコニー面積8.71 ㎡
- 築年月2012年8月
- 総戸数270戸
- 土地権利所有権
- 用途地域第二種中高層住居専用地域・第二種住居地域
- 現況空室
- 引渡日即可
- 駐車場空有(53,000円~73,000円/月)
- ペット飼育可(小型犬、猫は合わせて2匹・小動物2匹・小鳥1篭まで・規約有)
- 事務所使用不可
- 管理費37,690円/月
- 修繕積立金20,530円/月
- 管理形態全部委託管理(日勤)
- 管理会社三井不動産レジデンシャルサービス㈱
- 施工会社清水建設㈱
- 旧分譲会社三井不動産レジデンシャル㈱
- 設備都市ガス・公営水道・本下水・EV・宅配ボックス・オートロック
- 備考駐輪場:空有(200円~300円/月)
レンタイルサイクル有(200円/回)
バイク置場:空無(3,000円/月)
インターネット(NTT・KDDI・つなぐネットコミュニケーション・DTI
ソニーネットワークコミュニケーションズ)・CATV(J:COM)
修繕積立金総額:1,013,804,235円(2025年6月現在)
固定資産税・都市計画税:304,110円(2025年度概算) - 修繕履歴2025年 直結増圧給水装置整備・雨水再利用ポンプ交換、直結増圧給水装置整備工事
2024年 ディスポーザー設備臭気ファン交換工事
- フローリング新規貼替
- 建具・玄関収納等新規交換
- 田中工藝製洗面化粧台新規交換
- TOTO製洗浄便座付トイレ新規交換
- TOTO製ユニットバス新規交換(浴室換気乾燥機付)
- 田中工藝製システムキッチン新規交換(食器洗い機付)
- 給湯器新規交換(追焚式)
- 壁・天井クロス新規貼替
- 照明器具新規設置
- エアコン3基新規設置
- 床暖房マット新規設置(LD)…等
Google Maps Loading...
- 所在地 : 東京都港区六本木1-7-10
- 交通 : 東京メトロ南北線『六本木一丁目』駅徒歩3分
東京メトロ日比谷線『神谷町』駅徒歩7分
東京メトロ銀座線『溜池山王』駅徒歩9分
東京メトロ日比谷線・都営大江戸線『六本木』駅徒歩12分
自宅からバーチャル内覧会を開催中です。
オンラインで物件をご案内します。
オンラインで物件をご案内します。
お電話での問い合わせ(10:00-19:00)











































