芝浦アイランドケープタワー3405号室 |東京都港区
物件の価値を磨き上げた
リノベーション住宅
リノベーション住宅
芝浦アイランドケープタワー3405号室
価格24,480万円
月額ローンのシミュレーション
- 総戸数1095戸のタワーレジデンス
- 34階部分・角部屋 収納率10%以上確保
- コンシェルジュサービス・24時間有人管理
- 所在地 : 東京都港区芝浦4-19-1
- 交通 : JR山手線・JR京浜東北線『田町』駅徒歩12分
都営三田線『三田』駅徒歩15分
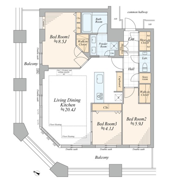
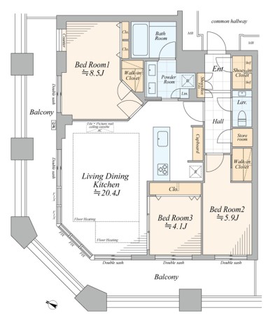
ゆりかもめ『芝浦ふ頭』駅徒歩11分 - 間取り : 3LDK+SIC・2WIC
- 専有面積 : 88.33 ㎡
当物件を
スマホで
チェック!!
- 24時間有人管理
- 2駅利用可能
- CATV導入済み
- オートロック
- トイレ新規交換
- ペット飼育可
- 光ファイバー導入済
(共用部まで) - 宅配ボックス
- 床暖房
- 浴室換気乾燥機
- 角部屋
- 食器洗い機
- 駐車場
- 駐輪場
自宅からバーチャル内覧会を開催中です。
オンラインで物件をご案内します。
オンラインで物件をご案内します。
お電話での問い合わせ(10:00-19:00)
物件概要
リノベーション内容
- 構造鉄筋コンクリート造陸屋根地下1階地上48階建34階部分
- 間取り3LDK+SIC・2WIC
- 専有面積88.33㎡(壁芯)
- バルコニー面積29.69 ㎡
- 築年月2006(平成18)年10月
- 総戸数1095戸
- 土地権利所有権
- 用途地域第二種住居地域
- 現況空室
- 引渡日即可
- 駐車場空有(24,000円~38,000円/月)※1
- ペット飼育可(飼育使用細則有)
- 事務所使用不可
- 管理費21,460円/月
- 修繕積立金21,460円/月
- 管理形態全部委託管理(日勤)
- 管理会社三井不動産レジデンシャルサービス㈱
- 施工会社鹿島建設㈱
- 旧分譲会社三井不動産㈱・他
- 設備都市ガス・公営水道・本下水・EV・オートロック・宅配ボックス
- 備考駐輪場:空有(100円~800円/月
キッズ・マザー駐輪場はウェイティング制)
バイク置場:空無(3,000円~6,000円/月・ウェイティング制)
インターネット(NTT・KDDI・つなぐネット・U-NEXT・ジェイコム・NURO光)
CATV(ジェイコム)
トランクルーム:空無(1,600円~6,300円・ウェイティング制)
修繕積立金総額:2,925,372,508円(2026年1月現在)
固定資産税・都市計画税:233,166円(2026年度概算)
※1 空き駐車場のサイズは要確認、機械式・タワー式はウェイティング制
平面式駐車場は空きが出た場合、募集をかけて抽選 - 修繕履歴2023年 大規模修繕工事実施
2022年 非常用発電設備修理工事
- フローリング新規貼替
- 壁・天井クロス新規貼替
- 建具・玄関収納等新規交換
- TOTO製洗面化粧台新規交換
- TOTO製洗浄便座付トイレ新規交換
- TOTO製ユニットバス新規交換(浴室換気乾燥機付)
- 永大産業製システムキッチン新規交換(食器洗い機付)
- 照明器具新規設置
- エアコン一基新規設置
- 床暖房マット新規設置(LD)
- 給湯器新規交換(追焚式)…等
Google Maps Loading...
- 所在地 : 東京都港区芝浦4-19-1
- 交通 : JR山手線・JR京浜東北線『田町』駅徒歩12分
都営三田線『三田』駅徒歩15分
ゆりかもめ『芝浦ふ頭』駅徒歩11分
自宅からバーチャル内覧会を開催中です。
オンラインで物件をご案内します。
オンラインで物件をご案内します。
お電話での問い合わせ(10:00-19:00)











































