リノベーション事例とお客様の声のご紹介
- 工事費2,000万円
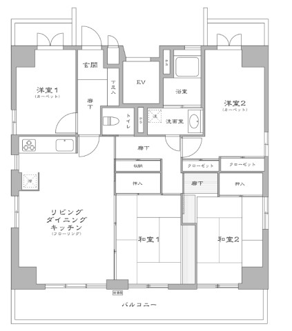
- 間取り2LDK
- 所在地東京都港区
- 専有面積91.68㎡
- 家族構成ファミリー
- 築年月昭和57年2月
-
リノベーションに物件情報を検索する
ぴったりの物件を知りたい方は -
豊富な写真付き無料で資料を見る
リノベーション事例を見たい方は -
具体的に考えるなら「イベント・無料セミナー・イベントに参加する
セミナー」に参加がおすすめ
- 1再開発が進み、ファミリー層が住みやすいエリアJR山手線・京浜東北線『田町』駅から徒歩7分、都営三田線・都営浅草線『三田』駅から徒歩9分に位置する、1982年(昭和57年)築のマンションです。
『田町』駅からは、『東京』駅や『新宿』駅などの主要駅に乗り換えなしで行くことができ、『品川』駅までも約3分で新幹線も利用しやすいため、出張が多い方や旅行好きの方にもおすすめの立地です。
オフィス街のイメージがある『田町』駅ですが、再開発が進み商業施設が充実し、ファミリー層にも住みやすいエリアです。 - 2暮らしやすい工夫を詰め込んだ家

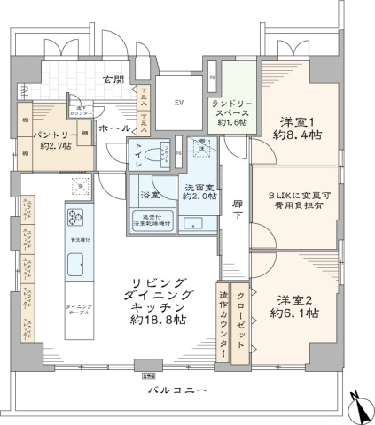
玄関に入ると、自転車や三輪車、ベビーカーなどを置ける広々とした土間スペースがあります。
土間スペースには、帰宅後すぐに手を洗えるよう、正面に造作カウンターと手洗いボウルを設置。カウンターの下にダストボックスやペーパータオルなどを収納できるよう設計しました。前面の壁はマグネットボードになっており、メモを貼って家族のコミュニケーションを取れる工夫も。
土間にはコンセントを設置しているので電動自転車の充電もでき、またコート掛けも設置しているので帰宅後すぐ上着を脱いで掛けておくことができます。
玄関からはホールとパントリー(約2.7帖)につながり、パントリーからはそのままキッチンへ行くことができる回遊性の高い動線設計です。買い物した食材をスムーズにキッチンへ運んだり、通販で届いた日用品をすぐにパントリーへしまうことができます。
元々LDKと和室で2部屋に分かれていた間取りを1つのLDKに変更し、リビングにはテレビボードとして使える造作カウンターを設置しました。
壁付けだったキッチンは、広いシンクと作業台、大容量のフロントオープン食洗機を備えたオープンキッチンに生まれ変わりました。キッチンの壁面には4m超のカップボードを造作しており、収納力も十分です。
洋室1(約8.4帖)には扉を2つ設置しており、2部屋に分けて3LDKに変更することも可能です。将来、もうひとつ子ども部屋が必要になったときや、集中できるリモートワーク部屋が欲しいときに活用いただけます。 - 3「マイリノ」設計士のアイディアを掛け合わせ

この物件は、グローバルベイスの都市部のリノベーションマンション「リノコレ」に、オーダーリノベーションの細かな設計を加えた「プラスマイリノ」シリーズです。
設計を担当したのは、約2,000件の多種多様なお客様からの相談を受け、細やかなヒアリングをもとにした設計提案を得意とするオーダーリノベーションサービス「マイリノ」の設計チーム。
設計士たちがそれぞれプランを出し合い、昨今のリノベーションのトレンドや、お客様からのご要望が多い細かな設計を詰め込みました。
リノベーション内容
- フローリング新規貼替
- 壁・天井クロス新規貼替
- 給水管・給湯管新規交換(専有部)
- 建具・玄関収納等新規交換
- LIXIL製洗面化粧台新規交換
- LIXIL製洗浄便座付トイレ新規交換
- TOTO製追焚機能付ユニットバス新規交換(浴室換気乾燥機付)
- トクラス製システムキッチン新規交換(食器洗浄乾燥機付)
- 照明器具新規設置
- エアコン一基新規設置
- 給湯器新規交換(追焚式)
- TVモニター付インターホン新規交換 …等
気になることがあればお気軽にお問い合わせください。リノベーションアドバイザーが何でもお答えいたします。(10:00-19:00)
オススメの事例
-
- 注目の高級住宅街、中野坂上中央1丁目
東京都中野区
間取り:2LDK
- 注目の高級住宅街、中野坂上中央1丁目
-
- リノベで叶えた快適セカンドライフ
奈良県奈良市
間取り:3LDK+WIC
- リノベで叶えた快適セカンドライフ
-
- 非日常と日常のハイブリッド
東京都狛江市
間取り:2LDK+WIC
- 非日常と日常のハイブリッド
-
- リビングが主役の大胆リノベ
神奈川県川崎市
間取り:2LDK
- リビングが主役の大胆リノベ
テーマ:おしゃれの事例
-
- 神楽坂と暮らす
東京都新宿区
間取り:1LDK+WIC
- 神楽坂と暮らす
-
- インダストリアルな大人リノベ
神奈川県川崎市
間取り:1LDK
- インダストリアルな大人リノベ
-
- 心地よさは、ちょうどいいバランスから
東京都新宿区
間取り:2LDK+WIC
- 心地よさは、ちょうどいいバランスから
-
- 光あふれるナチュラルリビング
東京都港区
間取り:3LDK+納戸+WIC・SIC
- 光あふれるナチュラルリビング








































