リノベーション事例とお客様の声のご紹介
- 工事費2,130万円
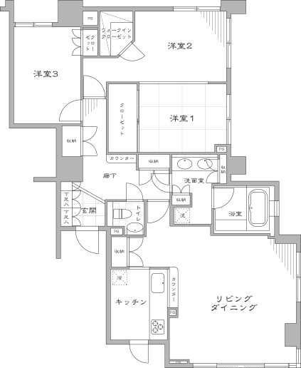
- 間取り3LDK
- 所在地東京都文京区
- 専有面積94㎡
- 家族構成二人暮らし
- 築年月平成14年
-
リノベーションに物件情報を検索する
ぴったりの物件を知りたい方は -
豊富な写真付き無料で資料を見る
リノベーション事例を見たい方は -
具体的に考えるなら「イベント・無料セミナー・イベントに参加する
セミナー」に参加がおすすめ
- 1持ち家のマンションを売却してお住み替え千代田区にある新築分譲マンションにお住まいで、将来を見据えて奥様のご実家に近い文京区への住み替えを考えていたというH様。
「前の家に住み始めて2年ほどだったので、今すぐに引っ越したいとは思っていませんでしたが、物件探しが趣味だったこともあり、日頃からスーモやホームズなどで物件情報を見ていました。新築マンションも視野に入れて検討していたところ、たまたまこの物件が売りに出されているのを見つけたんです。希望していた90㎡以上の広さと広いルーフバルコニーがあり、新築と比較して絶対にこの物件の方が良いと思って購入を決めました。そこからリノベーション会社を探して、マイリノともう一社で検討しました。前の家の引き渡しがあったので、設計や工事のスケジュールを重視し、迅速に進めてくださるマイリノに決めました。」(H様) - 2ラグジュアリーモダンに「和」をプラス

生活動線の良い3LDKの間取りやリビングの折り上げ天井など、すでに凝ったつくりの物件であったため、リノベーションでは既存を活かしつつ内装デザインを一新しました。設計打ち合わせのヒアリングでは、H様が理想とするキッチン写真を拝見し、和モダンなホテルをイメージして木の縦格子をあしらったデザインを提案させていただきました。玄関や廊下、洗面室、キッチンの天井や壁は締め色となる黒のクロスを採用し、明暗のメリハリをつけた空間となっています。
「最初の設計打ち合わせでは、モダンな雰囲気にしたいことと好きなホテルの名前を伝えました。設計担当の方が『完全に好きな感じが分かったので大丈夫ですよ』と言ってくださって、私たちの希望を汲み取った提案をしていただきました。水回りなどの設備はいくつかメーカーのショールームへ行って一番良いと思ったものを選んでいます。近所にある水回りメーカーのショールームの予約がなかなか取れなくて、埼玉などへ遠出したのは少し苦労した思い出ですが、全体を通して妥協したことは一切ありませんでした。設計担当の方が最高で絶対的な信頼を置いていて、工事担当の方たちも気立てが良く丁寧でした。」(H様)
「リビングに置いているソファは、いつか置きたいと思っていたもので、すっきりとしたデザインが気に入っています。エアコンを壁掛けではなく天井カセットエアコンにして目立たないようにしたのもこだわりポイントです。」(H様)
リビングから一番近い洋室は寝室として、玄関から進んで左にある洋室はゲーム部屋として、玄関を進んで突き当りにある二面採光の洋室はテレワーク部屋として使用されています。
「2人とも出社とテレワークを組み合わせて自由に働けるので、テレワーク部屋を交互に使っています。ダイニングでも仕事ができるので2人でテレワークするときもありますね。ゲーム部屋には、F1のゲーミングチェアを置いています。」(H様) - 3厳選した設備や家具で愛着のある住まいにこれからリノベーションしたい方に向けて、理想の住まいを叶えるために「やっておいてよかったこと」をお聞きしました。
「設計内容が最終FIXしたタイミングで、高精度のパースをつくってもらったことです。初回のタイミングでイメージパースやイラストを作っていただいたので雰囲気はなんとなくわかったのですが、すり合わせていく中で変わった部分や購入したソファもパースに入れてもらって、全体の色味や照明の雰囲気などを最終確認しました。工事担当の方ともそのパースを見ながらお話できたのでコミュニケーションが取りやすかったです。」(H様)
大きい窓があり、リビングの陽当たりや風通も良好。広いルーフバルコニーからは富士山や東京スカイツリー、東京ドームなどを一望できます。前のお住まいと比べて広く開放的な空間になり、おうち時間も増えたそう。
「前の家はいつか売却すると思っていたこともあり、持ち家でしたが賃貸物件に住んでいるような感覚でした。今回のリノベーションでは、デザインや設備などを自分たちで1つずつ選んだので、前よりも“自分の家"感がありますね。これからも、綺麗に保つために緊張感を持って片付けようと思います。」(H様)
-
マイリノ担当者からのコメント
感動するほどかっこいいお部屋が完成しました。夜はバーのように照明を暗くできる工夫を凝らしてありますので、ご友人を呼んでの飲み会も楽しんでいただけたらと思います。
照明、バルコニー、洋室でのゲームなど、遊べる要素が多いお部屋で、お休みの日を十二分に楽しんでいただければ幸いです。(営業担当)
初めて現地調査をした際、こんなにも眺望の良い大きなルーフバルコニー付物件が都内にあったんだと驚きました。
折り上げ天井や間仕切り壁など、既存の活かせる部分は必要以上に解体せず、その分ふんだんに木材や磁器質タイル材を使用し、モダンなホテルのような内装にリニューアルしました。
94㎡超の広さがあるため、各部屋のエアコン室外機までの距離が長く、なるべく天井が下がらないようエアコン配管ルートの選定に苦労しました。玄関や廊下などに使用した黒色のクロスは糊の跡が付きやすく、3回の貼り替えとクリーニングを行ったことも思い出です。
「和」のテイストが入ったラグジュアリーモダンな空間は、マンションリノベーションの事例でもそこまで多くありませんので、完成した際は新たな可能性を感じることができ大変嬉しかったです。
ルーフバルコニーも本当に気持ち良く、ご友人をいっぱい呼んでいただき、外と室内の両空間でパーティーを楽しんでいただけたら嬉しい限りです。(設計担当)
リノベーション内容
- フローリング・タイル新規施工(一部カーペット貼り)
- 壁・天井クロス新規施工(一部壁タイル貼り、一部壁シナ合板貼り)
- 建具・玄関収納新規交換
- システムキッチン新規交換(食器洗浄乾燥機付き)
- キッチンカウンター新規造作
- 洗面化粧台新規交換
- 追焚機能付ユニットバス新規交換(浴室換気乾燥機付)
- 洗浄便座付トイレ新規交換
- 照明器具新規設置
- 床暖房新規設置
- 天井カセットエアコン新規設置
- 給湯器新規交換
- ハウスクリーニング …等
気になることがあればお気軽にお問い合わせください。リノベーションアドバイザーが何でもお答えいたします。(10:00-19:00)
オススメの事例
-
- 色選びにこだわった家
兵庫県西宮市
間取り:4LDK
- 色選びにこだわった家
-
- 静かな環境と利便性。理想的な立地に佇む、暮らし方に合わせた広いお家
東京都世田谷区
間取り:4LDK+ 書斎
- 静かな環境と利便性。理想的な立地に佇む、暮らし方に合わせた広いお家
-
- 心地よく過ごせる趣味全開の家
大阪府吹田市
間取り:2LDK+WIC
- 心地よく過ごせる趣味全開の家
-
- 築60年超、静かな環境にゆったりとした時間が流れる都心のヴィンテージマンション
東京都新宿区
間取り:1LDK
- 築60年超、静かな環境にゆったりとした時間が流れる都心のヴィンテージマンション
テーマ:おしゃれの事例
-
- 神楽坂と暮らす
東京都新宿区
間取り:1LDK+WIC
- 神楽坂と暮らす
-
- インダストリアルな大人リノベ
神奈川県川崎市
間取り:1LDK
- インダストリアルな大人リノベ
-
- 心地よさは、ちょうどいいバランスから
東京都新宿区
間取り:2LDK+WIC
- 心地よさは、ちょうどいいバランスから
-
- 光あふれるナチュラルリビング
東京都港区
間取り:3LDK+納戸+WIC・SIC
- 光あふれるナチュラルリビング
































