リノベーション事例とお客様の声のご紹介
- 工事費2,165万円
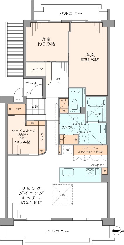
- 間取り2LDK+S・SIC
- 所在地大阪府豊中市
- 専有面積99.30㎡
- 家族構成ファミリー
- 築年月平成4年2月
-
リノベーションに物件情報を検索する
ぴったりの物件を知りたい方は -
豊富な写真付き無料で資料を見る
リノベーション事例を見たい方は -
具体的に考えるなら「イベント・無料セミナー・イベントに参加する
セミナー」に参加がおすすめ
- 1将来を見据えた物件探しご主人の転勤で福岡から大阪へ転居され、吹田市の賃貸マンションにお住まいだったH様ファミリー。福岡に住んでいるときからマンション購入を考えていたそうで、大阪へ転居されてから本格的に物件探しをスタートしました。
「福岡から大阪へ引っ越してきた際、福岡よりも家賃が高くてもったいないと思い、ローン支払いが家賃と同程度であればその方が良いのではないかと考えました。最初は戸建ても視野に入れてハウスメーカーへ話を聞きに行きましたが、主人の転勤の可能性も考えて、将来的に賃貸や売却がしやすいように中古マンションを買ってリノベーションすることにしました。」(H様)
これまで10件以上を内見してきたそうですが、なかなか理想的な物件に出会えず諦めそうになったタイミングもあったといいます。
「スーモやホームズを見ていても、なかなか新しい物件情報が出てこず、どうしようかと思っていたところに営業担当の方から『この物件はどうですか?』と連絡をいただきました。そのときは吹田市内の駅近物件を希望していたので、土地勘のない隣の市になってしまうことと、駅から少し距離があることが気になったのですが、一度見てみようと思い内見に来ました。約100㎡近い広さ、眺望の良さ、リビングに吹き抜け、洗面室に屋根裏部屋がある家で面白いと感じ、いつか賃貸や売却するときのことを考えるとこの家だなと思いました。自分が良いなと思ったのと同時に、他の人が見たときにも良いなと思ってもらえる物件だと思い、すぐに申し込みました。」(H様) - 2空間を共有できる、こだわりのキッチン

ジャパンディスタイルの内装をイメージして、理想の間取りや設備を「絶対に叶えたいMAST」、「できれば叶えたいWANT」の2つに分け、パワーポイントにまとめられたH様。その資料をもとに設計打ち合わせを進めていきました。
大きなキッチンは、リビングダイニングにいる家族や友人と空間を共有できるオープン設計。最初はアイランド型を考えていたそうですが、マンションの管理規約でパイプスペースやガス管の位置を変更できなかったためペニンシュラ型に。キッチンの前面にはダイニングテーブルとしても使うことができるカウンターを造作しました。テーブルに料理を運ぶ手間が省けて家事動線の短縮になるため、お子さんと食事する際はカウンターが大活躍しているそう。海外メーカー「ミーレ」の巨大食洗機とビルトインオーブン、「ガゲナウ」のバーベキューグリル、4口コンロ、浄水器付き水栓、傷や汚れに強いシーザーストーンの天板を採用するなど、デザインだけでなく機能面にもこだわりが詰まっています。
「前の家は食洗機がなかったので、手洗いする時間が節約できて家事が楽になりました。夢だったバーベキューグリルも設置してもらって、最近は自分たちで串にお肉を刺して焼き鳥を作って楽しんでいます。作業がしやすくなり、開放感もあって最高ですね。キッチンからはリビングダイニングで何をしているかがよく見えるので、家族や友人と会話しながら料理するのが楽しいです。将来的には、キッチンスタジオとして貸し出しができたらいいなと思っています。ひとつだけ、これからリノベーションする方へのアドバイスとして、カップボードの収納は観音開き扉よりも、引き出しの方が使いやすくておすすめです。」(H様)
ガラス引き戸でリビングとつながる約5.4帖のサービスルーム(納戸)は、在宅でお仕事をされる奥様のワークスペースです。椅子を並べてお子さんと一緒に勉強ができる広さのデスクに設計しました。奥は可動棚を設置したシューズインクローゼットになっており、白い引き戸を開けると玄関と繋がります。
「前の家ではリビングで仕事をしていたので、リビングに仕事関係のものが置きっぱなしになっていることがありました。ワークスペースをつくったことで、仕事関係のものを区別して収納できたり、オンとオフの気持ちの切り替えがしやすく、仕事に集中できるようになりました。」(H様)
玄関は、床の大理石を既存利用。もともと設置されていたシューズボックスを取り払い、踏込床を造作しました。現在はキャリーケースを置いていますが、将来的には植物とベンチを置きたいと考えているそう。玄関を入って左には、奥様がこだわったアーチの開口があり、奥へ進むと隠れ家のようなヌックがあります。ちょっとした腰掛けとしても、お子さんたちの遊び場としても、ご両親がお泊まりする際の寝室としても使うことができ、床下収納とコンセントも備え付けた便利なスペースです。 - 3理想のインテリアに出会う楽しみ

お引っ越しから約2ヶ月が経過し、落ち着いた生活を送られているというH様。インテリアは未完成で、これからも整えていきたいと考えているそう。
「ダイニングに置く棚の購入と、壁面に飾るアートを家族で作りたいと考えています。今置いているソファやテレビボードは、自ら3Dパースを活用してイメージを落とし込んでから購入しました。ダイニングに置く棚も3Dパースを活用しながらイメージを膨らませていて、早くぴったりの商品に出会えたらいいなと思っています。観葉植物も増やしていきたいですね。」(H様)
シンプルでありながら温かみのある、ジャパンディスタイルのお住まいが完成。吹き抜けから日の光が降り注ぐリビングダイニングは、家族団らんの場としてはもちろん、ご友人とのホームパーティー、おしゃれなキッチンスタジオとしても大活躍しそうです。人が集い、より一層明るく楽しい時間が流れていくことでしょう。
-
マイリノ担当者からのコメント
マンションの管理規約が非常に厳しい中、H様のご協力で無事にリノベーション工事を完了することができました。
物件の特性を活かした、ショールームのような綺麗で透明感のある内装に仕上がり、本当に良かったです。
キッチンスタジオとしても利用されたいとのことでしたので、お住まいになりながら収益を生むお家になればいいなと思います。(営業担当)
ご自宅にお伺いしてお好きなテイストをヒアリングさせていただいたり、ご自身で3Dパースを作成されて理想のイメージを共有していただけたので、とてもスムーズに進行することができました。
キッチンの幅は約3mという大きなサイズでありながら、収まりよく設備関係を充実させることができたのは、オーダーリノベーションならではだと思います。
これからも、笑顔で楽しくお過ごしいただけたら嬉しく思います。(設計担当)
リノベーション内容
- フローリング・タイル新規施工
- 壁・天井クロス新規施工
- 建具新規取付
- カウンター付システムキッチン新規造作(食洗機・ビルトインオーブン・バーベキューグリル実装)
- 洗面化粧台新規交換
- 追焚機能付ユニットバス新規交換(浴室換気乾燥機付)
- 洗浄便座付トイレ新規交換
- ヌック新設
- 照明器具新規設置
- 給湯器新規交換
- ハウスクリーニング …等
気になることがあればお気軽にお問い合わせください。リノベーションアドバイザーが何でもお答えいたします。(10:00-19:00)
オススメの事例
-
- 愛犬とのびのび暮らせる家
東京都目黒区
間取り:2LDK
- 愛犬とのびのび暮らせる家
-
- 家族が集まるモノトーン&ナチュラル
東京都渋谷区
間取り:4LDK+SIC
- 家族が集まるモノトーン&ナチュラル
-
- 色選びにこだわった家
兵庫県西宮市
間取り:4LDK
- 色選びにこだわった家
-
- 保育園の申込期日との戦い、二転三転して見つけた安心して住めるお家
東京都台東区
間取り:2LDK+WIC・SIC
- 保育園の申込期日との戦い、二転三転して見つけた安心して住めるお家
テーマ:おしゃれの事例
-
- 神楽坂と暮らす
東京都新宿区
間取り:1LDK+WIC
- 神楽坂と暮らす
-
- インダストリアルな大人リノベ
神奈川県川崎市
間取り:1LDK
- インダストリアルな大人リノベ
-
- 心地よさは、ちょうどいいバランスから
東京都新宿区
間取り:2LDK+WIC
- 心地よさは、ちょうどいいバランスから
-
- 光あふれるナチュラルリビング
東京都港区
間取り:3LDK+納戸+WIC・SIC
- 光あふれるナチュラルリビング








































